Bonjour à toutes et tous, je suis à la recherche de documentation sur les cotes à respecter lors de la fabrication de mes tiroirs.
Mon quincailler m'a conseillé d'utiliser les coulisses Blum Movento mais sans plus d'explications.
N'aimant pas faire et refaire j'aimerais savoir comment fabriquer ces derniers pour qu'ils s'adaptent aux coulisses.
Dites-moi si j'ai bien compris..
1 - Il faut que le fond du tiroir soit surélevé de l'épaisseur du module?
2 - Je dois créer une ouverture et percer sous le tiroir pour que la charnière aille au bout du tiroir?
3 - Y a t-il d'autres ajustements ou cotes à respecter?
Je ne me trouve pas clair non plus!
Merci d'avance!
Plein de copeaux à vous!
3 réponses
 
    
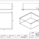
salut, j'était dans la même galère il y a peu alors j'avais fait des recherche et j'ai trouver des schémas dont j'avais déduit ça : 
Épaisseur coté < ou = à 16mm
Épaisseur dos tiroir = 10mm
Hauteur entre coté tiroir et plafond > ou = 7mm
Hauteur entre fond de tiroir et plancher = 28,5 mm
Hauteur haut coulisse et plancher : 40mm
Largeur entre intérieur coté tiroir et coté meuble = 21mm 
Largeur intérieur tiroir = largeur intérieur caisson - 42mm
Profondeur intérieur tiroir = profondeur tiroir - 10mm 
Profondeur caisson = profondeur tiroir + 3mm
Hauteur entre fond de tiroir par rapport au coté du tiroir = 12 - 15 mm
Longueur coté tiroir = longueur coulisse - 10mm - ep arrière tiroir
 
    
Salut.
Oui tu as les côtes de pose sur le site de Foussier par exemple.
Il faut effectivement faire un fond rehaussé et percer l'arrière du tiroir pour que le taquet de la coulisse gère le porte à faux.
Tu dis un trou dessous ?
Ces coulisses permettent quand même une grande variété de réglages.

 
     
     
     
     
     
    
 
     
    
 
    