Bonjour à tous,
je veux me fabriquer un gabarit pour poser des fiches de type anuba ou otlav
otlav.it/fr/pr...IGLIA=030130AH0
A priori, de ce que je lis ici et ailleurs c'est mieux d'avoir le gabarit pour poser ce type de fiche, on peut le comprendre.
Par contre les gabarits, si on les trouve sont quand même relativement chers... 80€ pour un morceau de bois avec trois trous, ca m'en fait un peu un deuxième.
J'ai donc fait un petit plan et je vais fabriquer ca tranquillement dans mon atelier parce que j'ai tout le matos qu'il me faut.
Le cahier des charges est le suivant :
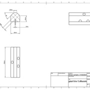
- pose affleurante
- fiche de 13mm de chez otlav (a priori)
Ce qui me manque ce sont les dimensions de ce gabarit
- la petit plaque de metal au milieu, sur la face inférieure du gabarit fait 2mm sur mon plan. Elle sert à assurer un écartement constant et minimum à la pose. Vous pensez que c'est suffisant 2mm ?
- sur mon plan, image 3, on voit que l'angle pour la pose est de 45. Vous pensez que c'est bon ?
- ...
En fait, toutes les dimensions de ce plan ont été choisies de façon plus ou moins arbitraire pour faire un "truc" qui ressemble à ce que je trouve sur internet mais je n'ai aucune idée de ce que dois mettre vraiment. Je ne trouve pas de documentation convaincante pour le faire.
C'est pour cette raison que je me tourne vers vous pour savoir si vous avez des infos et si vous pouvez m'apporter de l'aide pour la conception de ce gabarit, s'il vous plait.
Je sais qu'il existe déjà un pas à pas sur le sujet fait par dorian
mais c'est pour une pose à recouvrement et là moi j'ai besoin d'un pose affleurante.
Merci à tous pour votre aide.
Olivier
Mis à jour

Hello !
Je ne réponds pas à la question, mais pour en avoir posé quelques uns, cela m'a paru plus simple que je ne pensais. Tout dépend donc si tu en as 150 à mettre ou juste 4...
bin ça dépend, si ca marche bien, j'en mettrai bien a plein d'endroits. J'ai des portes de placards a faire, des portes intérieures et plein d'autres choses. Vu l'étendue de la gamme otlav, si les gabarits sont pas si difficiles à faire, ca pourrait devenir mon standard.
Hello,
Petite question pour être certain de bien comprendre ton besoin, est-ce un assemblage comme illustré sur l'image ci-dessous que tu voudrais réaliser ?
Bonjour Dorian et merci pour ta réponse.
Non, ce n'est pas ca. Ce que tu montres, d'après ce que j'ai compris, c'est un montage à recouvrement. Il semble que les fiches de ce type se montent aussi bien en montage à recouvrement qu'en montage affleurant. Moi je veux faire un montage affleurant comme sur l'image.
La pose telle que tu la décrit me semble envisageable. Cependant, je te conseille de rester prudent sur la charge acceptable pour les fiches. Comme tu les fixes avec un angle de 45° au lieu des 90° habituels, tu vas rentrer moins profondément dans le bois. La fiche ne sera donc pas aussi "forte" qu'en pose classique. As-tu trouvé une solution quant aux côtes à employer pour la confection de ton gabarit ?