Bonjour à tous,
J'ai en projet de réaliser des étagères en prolongement de mes placards de cuisine, composé d'une série de blocs.
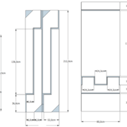
Comme une image vaut mille mots, voila un schémas de ce que je souhaite réaliser, avec un plan de coupe basique avec les côtes.
L'étagère fera donc environ 214cm de long, sur 80 de haut, avec une profondeur de 16 sur la majorité de la longueur.
J'ai prévu de faire le fond (partie droite du plan de coupe), fixé au mur, en 22mm et les étagères et intercalaires verticaux en 18mm. Les intercalaires seront séparés de +/- 30cm.
Je cherche à obtenir une finition lisse, de type mélaminé, pour ressembler le plus possible à ma cuisine de marque suédoise, mais je n'ai pas confiance dans les panneau mélaminés pour durer dans le temps.
Les blocs accueilleront des livres, donc du relativement lourds.
J'hésite donc entre du contreplaqué ou du MDF comme matériaux de base, entre solidité et facilité de finition.
Des suggestions ? Des conseils ?
Merci beaucoup.
4 réponses
Il existe des panneaux mélaminés de très bonne qualité (entre autres chez EGGER), avec une grande gamme de décors, que tu peux trouver chez les marchands de bois pros. De plus ces marchands peuvent souvent faire le débit sur scie à commande numérique suivant une feuille de débit que tu leur donnes. Avantages : une précision parfaite, et tu t'évites le désagrément de travailler cette matière peu agréable. Ils peuvent aussi réaliser le placage des chants. J'ai fait plusieurs dressing de cette façon et il n'y a pas de problème dans la durée.

Salut,
Un petit conseil qui ne répond pas vraiment à la question : plutôt que de vouloir ressembler, ce qu'on arrive pas à faire exactement généralement, il vaut mieux trancher avec de nouvelles couleurs matières. Dans cas cas, tu est sur de faire d'erreur ;)