Un croquis en guise d'ouverture de ce pas à pas.
Le projet consiste en la réalisation d'une charpente tradi en chêne, 6 fermes au total, avec doubles-faîtage et croix de St-André.
bon we, et à bientôt avec la suite au fur et à mesure du chantier.
Michael
Liste des articles
Une charpente pour Anna. Une série de vidéos sur la réalisation de ce chantier
Une vue 3D du projet. Réalisation avec Woody (Plugin Sketchup)
Une charpente pour Anna, la seconde vidéo...
A l'époque, je n'avais pas pensé à ajouter les vidéos au fur et mesure... je vais me rattraper
Une charpente pour Anna, la 3ème vidéo...
Je m'aperçois avec plusieurs années de retard que je n'ai pas publié les dernières vidéo de cette série... voiçi la 3ème, sorry
Une charpente pour Anna, la vidéo du levage de la charpente.
Une grue, trois hommes, et 8 heures pour lever une charpente de près de 10m³ de chêne...

Discussions
Projet conséquent dis-donc ! Est-ce que tu peux nous en dire plus : c'est pour coiffer quel type de bâtiment, est-ce en bois neuf, et donc corroyé, ou en vieux bois ?
J'ai déjà hâte de voir la suite !
super projet ,le plomb à piquer va chauffer !!!! sinon mêmes questions que will ? je vais suivre cela de près !!
De fait le plomb risque bien de fondre, lol.
Pour répondre à vos question: bâtiment neuf et bois neuf. le travail avec le scieur est presque terminé, sélection de pièces de bois, sciage de grumes pour les entraits, etc... On est dans du local, bois des Ardennes Belges, scieur à 4km de l'atelier.
Une partie du bois est à l'atelier, le camion livre le reste demain.
10m³ de chêne brut...
a+, Michael
Très belle charpente...
10m³ de chêne ca tourne dans les 10-12000€ non? Je voudrais pas payer la facture...
Le bois de charpente coûte un peu moins cher, mais de fait on s'approche des 10.000 eur de bois
Je suis étonné du prix que tu donnes. Par chez moi, en Bourgogne, on trouve du chêne en bord de route à environ 100 euros le m3. Et le scieur prend 50 ou 60 euros par m3. Même en rajoutant le transport, on est loin des 1000 euros...
100eur/m³??? A ce prix là j'en prend 10 camions d'avance...
Compte entre 600 et 800 le m³ en fonction des sections et longueur pour du bois scier.
Pour 100eur chez nous, t'as même pas du mélèze, lol
tu parles peut être de bois de chauffage ;-)
100€ en grume + disons 60€ de sciage et comptons 50% de chutes ( je ne sais pas si c'est de cet ordre là pour du sciage de charpente sur du chêne), ça fait du 320€/m3 scié. Toudoum : le compte est pas bon!! On est loin des 600€...
Sinon, je suis bien intéressé par ce pas à pas.
Quelle utilité de doubler le faitage avec croix de St André ? (sachant que tu as déjà des liens de contreventement entre les poinçons et la faîtière...)
On va bientôt entendre parler sanglier, je pense ;o)
Le double faîtage a un rôle dans le contreventement, c'est bien plus fort que les liens. et en plus, vu que la charpente sera apparente, c'est très esthétique.
Par contre à 320eur les m³ scier, ça fait pas cher.
Merci Maillien Michael !
Alors alors, tu m'as mis le doute ! J'ai donc redemandé à mon patron qui en a rentré il y a 2 semaines. Il les a payé 90 euros le m3, mais m'a précisé que c'était un bon prix !
Et je te parle bien de billes de chêne, pas de bois de chauffage !
La cheminée ne serait pas assez grande !
Et bien, Wil à ce prix là c'est moi cher que le bois de chauffage chez moi
Wil je n'ai pas de comparatif en bille, mais effectivement, 90eur le m³ + 60eur de sciage... je vais venir faire mes courses dans ton coin, il y a du bon vin par chez toi ;-)
ton patron a acheté des billes de quelles longueur?
j'ai repris le tarif de la scierie avec qui je travail, à partir de longueur de 7m, c'est 1000eur le m³... en bois de charpente.
Voili voilou, le chantier est en cours, j'ai commencé hier par le tracé de l'épure au sol, et les premières mise sur ligne.
Oui oui, y a aussi du bon vin !!!
Les billes font entre 6 et 10 m. Par contre je te parle de billes de bois entassées le long de la route, c'est à nous d'organiser le transport. Je ne te parle pas du prix acheté en scierie. Et pour le scier, on fait venir une scierie mobile.
schgreg, c'est vrai que le prix du bois de chauffage est très variable selon les régions : pour moi, 43 euros le stère en 50 cm, livré.
Je vois Maillien Michael que toi aussi tu fais tes épures sur dalle béton. Mais en bleu c'est bien visible, moi j'ai l'habitude de faire ça en blanc, mais c'est beaucoup moins visible !
L'avantage du blanc, c'est que l'épure reste propre, mais les trait s'effacent vite.
Le bleu et le rouge sont plus salissant, mais résiste bien aux coups de brosses, ce qui est intéressant quand tu as plusieurs pièces à tailler.
Je lis au fure et à mesure ce pas à pas. Peux tu faire des articles concernant le tracé de l'épure et la mise en ligne?
C'est intéressant de voir les différences de tarifs. Ca fait réfléchir avant de signer.
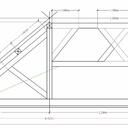
Sur la photo du plan, je ne vois pas les croix de St André, ni le double faîtage ? Je suis plus que novice en charpente!
C'est vrai niconathy qu'on ne les voit pas très bien sur le plan. Ça se trouve dans la 2ème et 4ème travée, mais c'est caché par les pannes.
D'ailleurs Maillien Michael, je n'avais pas fait attention avant, mais pourquoi le double faîtage n'est pas sur toute la longueur ?
On aurait pu le faire sur toute la longueur, mais ce n'est pas vraiment utile.
Salut à tous, ça fait bien longtemps... le projet est terminé bien entendu, peut être un peu de temps pour continuer à partager les photos de ce chantier.
Ci-dessous, quelques photos lors de la taille à l'atelier.
La taille des faîtières et sous-faîtières fut une belle partie de plaisir de se projet.
Tu fais tes marquages à la rainette ? Ils paraissent sacrément profond !
J'ai une rainette arrondie, mais je n'aime pas. je fais les marquages en deux coups de ciseaux à bois
En tout, 200 tenons et mortaises, autant de trous à tire pour les chevilles.
Le montage sur chantier est un jeu d'enfants, un vrai légo. C'est même frustrant, car après 1 mois de taille en atelier, le levage à été réalisé en ... 1 jours.
Quelques vues de l'ouvrage...
Quelques vue de l'ouvrage
hello , il faut mettre tes photos avec chapitre dans le pas à pas !!! sinon beau boulot !
avec chapitre?
Tu crées un nouvel article quand tu édites ton pas à pas
Maillien Michael oui article , pardon !! c est un peu de boulot ,mais c est super intéressante de décrypter toute la chronologie !!
bref fait nous un beau pas à pas ,cet ouvrage et le concepteur le mérite !!!
well, je vais regarder à ça. Merci pour le conseil.
Je découvre ton travail, super boulot!
Merci
Merci pour la suite!
Super ! Tes nouveaux tutos vont être top également ! Merci ;)
Toujours un plaisir
Bonjour,
Ca c'est du bel ouvrage!
Pas de coupes de sifflet pour les jonctions de pannes?
Pas de coupe en sifflet non.
Bonjour à tous
Super ces vidéos, ces photos. Bonnes explications et super boulot!
j'ai une question en rapport avec le drôle fil à plomb que tu utilises pour reporter tes traçages du sol sur les pièces de bois.
Quel est son avantage par rapport à un fil à plomb qui se terminerais en pointe?
C'est un fil à plomb de charpentier, il permet de vérifier un aplomb en regardant par au dessus.
Voir les explications pages 26 et 27 d'Emy
gallica.bnf.fr...774019/f76.item
et la planche associée
gallica.bnf.fr...14023r/f11.item
dneis +1