Bonjour,
Pour ceux qui s'en souviennent, j'ai mon projet d'établi qui avance dans mon pas à pas.
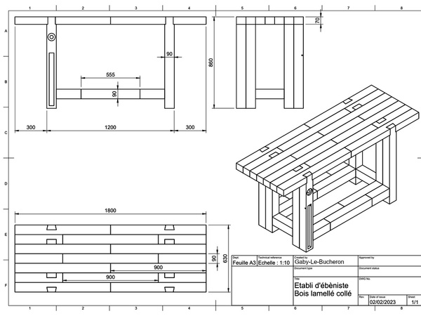
J'arrive bientôt à l'étape intéressante de l'assemblage du plateau.
Comme vous pouvez le voir sur le plan, il est constitué de sections de 70x90mm entre 50 et 100cm de long.
Questions:
1) Je pense assembler le tout avec des faux tenons (dominos) sur tous les chants. Je n'ai pas encore la taille des dominos en tête, donc je ne sais pas encore quelle distance max respecter entre 2.
Pour les entures en bois de bout, je pense également à un domino.
Est-ce qu'il y a intérêt à usiner une enture en sifflet ? Toujours avec un domino au milieu. J'ai l'impression que c'est pas utile...2) J'hésite entre colle PU et colle blanche. L'établi restera au sec. En théorie la colle blanche D1 devrait être suffisante, mais je ne sais pas si c'est raisonnable pour un plateau d'établi qui va prendre des coups de maillet... Si la colle blanche D1 suffit, ça m'arrange quand même pour la facilité d'application et de nettoyage...
3) Quel mode opératoire ? Est-ce que je fait tous mes usinages et assemblage à blanc d'un coup, puis collage de tout le plateau ? Supposons que j'ai assez de serre-joints.
Ou est-ce que je fais d'abord les entures pour avoir les sections de longueur finale, puis usinage des chants et collage ?
5 réponses
Salut,
Je procéderai sans domino (tu vas en avoir pour cher, c'est long) qui ne servent qu'à maintenir l'affleur des différents lames: vu l'épaisseur des lames et le collage dans le bon sens des fibres ça va être très très solide ! Par contre pour te simplifier la vie tu peux faire le plateau en plusieurs fois: tu le divises en trois ou quatre et tu gères le collage plus détendu en corrigeant plus facilement les affleurements. De toutes façons tu n'échappera pas a une petite séance de rabotage !
J'ai collé le mien de cette manière (2 m de long, 0.6 de large et 0.12 d'épaisseur) sans problème, et je peux te dire qu'il est costaud (il m'arrive de refendre mon bois de chauffage dessus...).
Par contre la colle je dirai D3 mini.
Bon courage !
Comme le dit kentaro , un bon collage est largement suffisant , ceci dit l avantage d un domino (ou languette ,lamello, tourillon) c est qu ils tiendront les différents morceaux a fleur lors du collage .Particulierement avantageux si les pièces de bois ne sont pas toutes parfaitement droites.
Je ne suis pas sûr de comprendre l'histoire des entures et faux tenons à coup de dominos ? Si il y a une enture comme sur ton plan pourquoi mettre un domino ?
Pour la colle, ça va aussi dépendre de l'humidité et de la température de ton atelier, l'humidité est à combien ?
Usinage, assemblage à blanc puis collage. Tout d'un coup ? Ca va dépendre du nombre de serre-joints en ta possession et du temps de prise de la colle (et de la température dans ton atelier).
Je ne suis pas sûr non plus de comprendre ta dernière question...
Edit : les entures c'est pour ton plateau ? Il n'est pas fait ? Ou c'est pour son assemblage dans les pieds -les montants- ?
Edit 2 : BLC
? Bas les couilles
?

