Bonjour, j'ai un placard mal foutu que j'aimerais aménager pour le rendre plus utile.
Comme vous pouvez le voir il y a un espace à gauche de la porte que j'aimerais pouvoir exploiter.
J'ai quelques idées mais si vous en avez aussi ça m'intéresse.
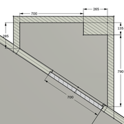
J'ajoute des informations.
Les dimensions d'abord.
C'est un placard près de l'entrée, donc Manteau, chaussure, balaie et aspirateur.
Et j'ai fait deux essais.
Une version avec penderie à droite et étagère à gauche (comme suggérer par trente six seb)
Et le contraire.
Cette version avec penderie à gauche peut paraitre moins pratique, mais c'est pour mettre les manteaux, Je n'en utilise pas beaucoup.
Bon, mais je n'avais pas pensé au balaie ...
Mis à jour
