Bonjour à tous,
Je suis en cours de rénovation d'une longère. Celle-ci possède un grenier que nous souhaiterions, à terme, aménager en étage (pour 2 chambres et un WC). Malheureusement, nous n'avons pas vraiment le choix sur l'emplacement de l'escalier.
Voici les dimensions :
- Hauteur du plancher : 2750mm
- Largeur trémie : 900mm
- Longueur trémie : 2450mm
- Réculement 1ère volée + tournant : 1450mm
Je suis parti sur un emmarchement de 80mm. Cela donne le tracé suivant :
La ligne de foulée mesure 2756mm. Je suis parti sur un escalier de 14 marches, soit une hauteur de marche de 197mm et un giron de 212mm. Cela donne un rapport H/G de 0.93, une loi de Blondel de 606mm donc un escalier relativement raide.
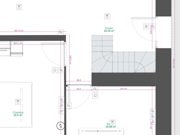
Pour mieux comprendre la situation, une vue d'intégration de l'escalier dans la maison :
Je n'ai pas encore balancé les marches. Le nez de la 1ère marche est aligné avec le mur en parpaing à gauche du plan. Cela tombe dans l'ouverture de la porte d'entrée, il faudra donc qu'on esquive la 1ère marche pour accéder au couloir qui longe le mur.
L'escalier sera-t'il tout de même confortable ? A partir de quel moment doit-on partir sur un escalier en colimaçon (critère de hauteur de marche, giron, Blondel) ? Avez-vous d'autres astuces permettant de le rendre plus "accessible" ?
Merci d'avance.
EDIT : En réduisant l'emmarchement à 700mm, la ligne de foulée passe à 2900mm, ce qui donne un giron de 223mm, un rapport H/G de 0.88 et une loi de Blondel de 617mm ... mais un escalier bien moins large.
Mis à jour2 réponses
Bonsoir
En passant à 2900 de ligne de foulée la solution devient plus acceptable , vous pouvez garder la première volée avec un emmarchement plus large (8oo). L'escalier en 700 reste encore praticable , vous pouvez reculer un petit peu les centres des tournants de la ligne de foulée pour allonger encore un tout petit peu. A noter que vous n'avez pas de plaquette d'arrivée cela va rétrécir la reculée.
Les escaliers en colimaçon sont réalisés pour des emprises au sol bien particulières, à noter que ce n'est pas les plus praticable pour une maison d'habitation de plus vient se greffer un problème d'échappée.
tu as calculer correctement de fonction de ta cage !
comme dit plus haut, tu as la plaquette à considérer !
par contre tu dit longère, l'arrivée de ton escalier au mur, as tu assez déchapée de tète a l'étage ? (soupente ?)
on peut aussi tricher la ligne de foulée à 450 de l'axe de main courante pour voir ce que l'on peu gagner ! ici une fois par volée a cause du changement de direction ! (dans un escalier de 900 elle serait a 450)
par contre si tu veux vieillir dans cette maison, je déconseille le pas japonais !
