Bonjour,
Je viens vous demander conseil à propos d'un sujet maintes fois traité sur l'AdB, mais sur lequel je n'arrive pas à me décider : la fixation murale d'un rack à bois.
Pas sûr que des avis supplémentaires m'aident à faire un choix, mais je prends le risque ! 
La situation initiale est la suivante : le mur en parpaings est plaqué en OSB 15mm avec une lame d'air de 30mm (tasseaux sapin 30x60mm). Ces tasseaux sont chacun fixés au mur par 5 tirefonds 8x100mm avec des chevilles nylon. L'OSB est vissé dessus avec des vis de 4x40mm.
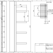
Je souhaite ajouter à cette structure un rack à bois, sur toute la hauteur du mur (2m20 au total). Les montants du rack seront en section 30x60 (j'ai du rab') et je prévois de fixer les tablettes par enfourchement verrouillés par chevilles ou tiges filetées sur ces montants.
Je prévois 4 supports par montants, chaque montant étant espacé de 625mm à l'heure actuelle (mais modifiable au besoin). Je prévois de stocker des avivés de chêne, de longueur caractéristique ~2m, donc reposant sur 3 supports. La masse totale à reprendre par support est estimée à 70kg, donc 280kg par montant.
Actuellement, les montants sont liés au mur par 5 tirefonds 8x100 avec chevilles. Ce qui donne un effort de cisaillement de 56daN par tirefonds, tout à fait compatible avec la résistance annoncée des tirefonds.
Je suis par contre paumé concernant le calcul de ces fixations à l'arrachement.
En appliquant la formule FL/(2H), où F est la force totale uniformément appliquée sur un support, L la longueur du porte-à-faux et H l'entraxe entre deux tirefonds, je trouve un effort à l'arrachement de seulement 39daN par tirefonds, ce qui me semble très peu.
NB : j'ai pris en compte un coefficient de sécurité de 1,5 sur la charge dans les chiffres annoncés.
Pourriez-vous confirmer/infirmer mon dimensionnement, en particulier à l'arrachement ?
Je ne voudrais pas me retrouver un matin avec le rack par terre...
Un GRAND merci pour votre aide !
Mis à jour2 réponses
Bonsoir,
je ne trouve pas l'info. par rapport à l'entraxe des futurs support...qui correspond aux tasseaux de 30 verticaux fixés.
ni la longueur ( ou porte-à-faux des supports). Est-ce pour mettre des plots de chêne, ou quelques avivés de sapin?
Sur 2,2 de haut, combien de support?
Pour faciliter la réponse, vous devriez aller plus loin dans le croquis proposé. Tenter un projet que l'on puisse s'appuyer dessus pour expliquer, commenter!
Et puis, ces croquis semble être du SU. Je suis gêné par ces lignes fuyantes qui alourdissent le croquis. C'est l'effet perspective d'une vue en perspective.
J'avoue que le dessin en mode "projection parallèle" que l'on trouve dans l'onglet Caméra, allègerait le rendu....
Donc, perso. j'attends un complément d'info. en disant quand même qu'il y a moyen.

J'ai mis à jour les données et modifié la question suite à la réponse de Tarazhilt et mes investigations complémentaires.
Je suis très preneur de vos conseils, que ce soit sur la méthodologie de calcul comme sur les solutions techniques !