Bonjour à tous,
suite aux questions résolues sur le solivage je m'attaque maintenant au dessin de la charpente... D'emblée c'est pas une mince affaire !
Pour situer mon "niveau" : J'ai une formation de menuiserie mais bon la charpente comme chacun sait est bien spécifique. J'ai aider à en réaliser et poser 3 dont une avec quelques détails technique (noue etc...). Aucune en traditionnelle pure.
Par contre jusqu'à maintenant je n'ai jamais eu à la dessiner !
J'ai un relever du bâtiment, bien qu'il y aura des précision à ajouter : un des bâtiments n'est pas un rectangle, l'autre à un mur qui c'est déformer (15 cm environ de faux aplomb)... Bref pas mal de détails à régler dans le futur.
Mais avant tout ça j'avais quelques question sur la "base"
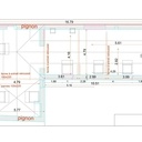
J'ai dessiné ça :
C'est la largeur maximal du bâtiments, la sablière (non représenté) est donc au nu intérieur du mur, ce qui me permet de reposer ma sablière partout malgré le mur légèrement courbe.
On y voit pour le moment uniquement arba (80x220),pannes (80x220) et chevrons (70x40 ?)
La ligne rouge est le pignon actuel
Mes premiers doutes :
- Je souhaite avoir environ 2m entre le solivage et l'entrait.
 Avec ce dessin cela place l'entrait très haute. Est il orthodoxe dans ce cas de positionner la faitière plus haute pour obtenir la hauteur désirée ? Car je change du coup l'angle du toit, sinon bien sur plus simplement descendre le niveau du plancher ? C'est encore jouable à l'heure actuelle.
Dans tout les cas j'ai déjà une reprise de pignon à faire...
- Je dois dessiner les jambes de force reprise avec blochet y a t'il une règle dans le positionnement de la jambe de force ? 
- Les blochets sont souvent encastrés dans les murs, mais vu la faible hauteur des murs ici ça me semble étrange de procéder ainsi. J'ai déjà vu dans une vieille charpente une reprise par moisement sur le pied de l'arba. Est ce envisageable ici ? 
Merci d'avance, pour vos cogitations et votre aide :)
Mis à jour4 réponses
 
    
hello , je t'avais dessiné un exemple ici
! tout en 8/22 moisé avec chevrons en 6/8 et sur ton dessin tu reprend les blochets dans la solive ! y a pas de soucis ! sinon pas besoin de contrefiches au poinçon elles sont trop courtes et ne servent pas à grand chose ici .
Pour dessiner une ferme , tu part des murs existant , et surtout du lattis de chevrons faisant foi , c'est à dire avant le lattage
 
    
Bonjour,
Est ce que tu peux mettre tes pannes dans l’épaisseur des arbalétriers (et non au dessus) ce qui diminuerai ta hauteur pour ne pas modifier la pente.
Descendre le niveau du plancher serait dommage non ? J'ai l'impression que tu es déjà bien bas.
Pour les jambes de forces, je ne crois pas qu'il y ai de règle... Il faut que ça passe au calcul... Pour moi c'est environ a la moitié de ton arba et après, plus elle est verticale et plus elles soutiennent ta ferme (mais plus tu éloigne l'effort des appuis de l'entrait, plus tu fais travailler ton entrait en flexion, quasiment toutes les charges de la ferme sont reprises par les jambes de forces)
Le moisement de l'arba avec les blochets, pour moi c'est ce qu'il y a de mieux même.
N’hésite pas si tu as besoin d'aide.
 
    
Essai ce site. La conception y est très détaillée et il y a plein de méthode de calcul
 
    
un entrait travaille surtout en traction par la poussée des arbas comprimés ... les contrefiches comprimées qui reprennent le poids des pannes tendent le poinçon ... dans entrait plein ferrure qui soutien la flexion naturelle de l'entrait ....un entrait retroussé trop haut n'evite pas le "grand ecart" en pied d'arbas ...de vieux souvenirs d'ecole charpente
 
     
     
     
     
     
    
 
     
    