C'est la première idée qui m'est venue !
Chacun bosse dans son coin pour seulement 1 pièce, un groupe de cinq se forme pour assembler 5 pièces qui constituent seulement 1/5 du projet final. L'assemblage du projet se fait de façon collégiale dans l'atelier de l'un d'entre nous et on boit un petit coup le temps que la colle prenne.
La contrainte c'est de travailler de façon précise d’après un plan pour ce qui est du volume de la pièce, après chacun a le choix de l'essence, de la finition, peut sculpter, graver... et surtout partager ses idées pour faire avancer le projet.
En espérant faire des émules...
Liste des articles
Le Qui Fait Quoi ?
Dans un premier temps voici la liste (par ordre d'arrivée) du
QUI FAIT ?
-1 cereus45
-2 voltig-eure
-3 Syldesalpes
-4 Wil
-5 zeloko
-6 Marco61
-7 chênedinspiration
-8 dependancesbois
-9 NinjaRouge
-10 riquet18x4
-11 captain
-12 stef88
-13 PLab
-14 Didier
-15 JC 61
-16 niconathy
-17 Nico39
-18 Etienne31
-19 dneis
-20 kajmed
QUI FAIT QUOI ?
# Pied 1 coordinateur cereus45
- Dixième d'assise #1 (pièce 1) :riquet18x4 (terminé)
- Dixième d'assise #2 (pièce 2) :PLab (terminé)
- Tier pied#1 (pièce 3) : cereus45 (terminé)
- Tier pied#2 (pièce 4) : Wil (terminé)
- Tier pied#3 (pièce 5) :captain (terminé)
# Pied 2 coordinateur voltig-eure
- Dixième d'assise #1 (pièce 6) :voltig-eure (terminé)
- Dixième d'assise #2 (pièce 7) :JC 61 (terminé)
- Tier pied#1 (pièce 8) :dependancesbois (terminé)
- Tier pied#2 (pièce 9) :stef88 (terminé)
- Tier pied#3 (pièce 10) :Marco61 (terminé)
# Pied 3 coordinateur NinjaRouge
- Dixième d'assise #1 (pièce 11) :NinjaRouge
- Dixième d'assise #2 (pièce 12) :zeloko
- Tier pied#1 (pièce 13) : Syldesalpes
- Tier pied#2 (pièce 14) : niconathy
- Tier pied#3 (pièce 15) : Didier
# Pied 4 coordinateur
- Dixième d'assise #1 (pièce 16) : chênedinspiration
- Dixième d'assise #2 (pièce 17) : chênedinspiration(terminé)
- Tier pied#1 (pièce 18) : Etienne31
- Tier pied#2 (pièce 19) :chênedinspiration
- Tier pied#3 (pièce 20) :chênedinspiration
# Pied 5 coordinateur Nico39
Plan dixième d'assise
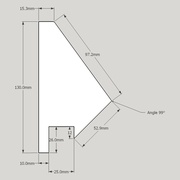
L'épaisseur choisie est de 26,00 mm.
Voici le plan au format image pour ceux qui n'ont pas envie de se casser la tête avec sketchup.
Plan tiers de pied 1, 2 et 3
Il me semble plus aisé de surcoter légèrement les tiers de pied et de mettre à longueur l'ensemble des 3 tiers une fois collé.
L'assemblage des trois tiers de pied et libre : à plat joint, lamelles, domino l'important c'est de bien respecter les cotes (26 x 20) de "l'inter-queue" qui va recevoir la "queue" du cinquième d'assise.
Encore un petit effort on y est presque
Nous sommes 20 à nous être engagés dans ce projet. Ce qui veut dire que notre tabouret ressemble à ça :
Je me vois mal offrir ce tabouret en l'état à Boris, lui qui a plutôt l'habitude de livrer des projets aboutis...
Il reste 6 postes à pourvoir, autant de chances de sortir de derrière votre écran pour faire la rencontre de boiseux de l'air du bois.
Le plaisir que nous procure l'air du bois mérite bien que l'on donne un petit peu de notre temps pour corroyer un tasseau de 26 x 25 non !
Pour de vrai il ressemble à ça !
Préparation des collages
Profitant d'une météo peu propice à la culture de légumes j'ai bossé sur ce projet...
Dans l'ordre
des cales pour le serrage de 2 dixièmes d'assise :
Gabarit de traçage des axes des mortaises pour l'assemblage final :
des dominos en barre :
cales d'espacement pour le serrage final
Les pièces terminées !
Assemblage du pied 1
Comme prévu Les 5 membres de l'équipe N°1 était au complet hier matin chez Wil !
Voilà ce qu'il en résulte :
Assemblage du pied 5
Grâce au dévouement de Nico39, kajmed, et dneis notre mouton a 2 pattes. Bravo à tous les trois 


Je vous laisse admirer le travail :
De quoi générer un regain d'énergie pour les retardataires non ?
Assemblage du pied 4
Assemblage final
Pour ce projet, tout ne s'est pas exactement passé comme prévu...
Je l'ai joué un peu perso pour l'assemblage final initialement prévu en groupe mais beaucoup d'entre nous souhaitaient voir notre beau mouton enfin sur ses 5 pattes. Je suis vraiment désolé pour ceux qui se sont engagés dans ce projet et dont la pièce est restée prisonnière dans l'atelier de voltig-eure
Merci à tous ON L'A FAIT !

Discussions
Ok for me plus que 24, un dixième d'assise
non 23 je participe si possible
Je mets les plans en ligne demain
Suis partant aussi pour ce beau mouton
cool !
Salut Cédric ! J'en suis !
super
suggestion: tu peux essayer de fédérer 4 autres Bourguignons
Veux tu faire parti de mon équipe ou commencer une autre équipe avec captain ?
Super initiative !! Je veux bien en être. C'est une pièce par personne, c'est ça ?
PS : cereus45, Je me dis que pour donner plus d'indépendance et laisser plus de visiteurs ouvrir ton pas à pas il ne faudrait peut-être pas reprendre directement l'image que j'ai mise sur le blog (le gâteau avec la bougie en 5). Sinon beaucoup passeront peut-être à côté en se disant que ce sujet ils l'ont déjà vu. Non, qu'en dis-tu ?
Heureux que tu nous rejoigne sur ce projet !
Oui une pièce par personne mais ceux qui on l'esprit tordu comme moi vont chercher à la fabriquer avec 5 morceaux de bois !
PS Pour la photo tu as raison hier soir j'ai collé celle ci un peu à l'arrache en fait je voulais entretenir un suspense comme un cadeau qu'on ouvre pour découvrir ce qu'il y a dedans. maintenant que le plan est publié cela n'a plus vraiment de sens.
J'ai trouvé !
zut mon idée
Si vous voulez bien d'un participant supplémentaire, je veux bien me rallier à l'idée :) En tout cas belle idée.
Merci
Toutes les bonnes volontés sont les bienvenues.
Salut à toutes et tous !
Moi, je suis pour aussi !!!
Pas de risque de différences de bois, teinte ?
Bonne journée !
ben d'un point de vue esthétique c'est un risque !
Ce projet (qui n'a apriori rien de fonctionnel) a vocation de rassembler des boiseux autour d'un projet représentatif de l'air du bois en faisant un petit clin d'œil zeloko.
Je ne veux pas me montrer trop directif pour que chacun s'approprie une part de créativité.
Après libre à nous de communiquer sur une esthétique commune...
zeloko As tu une idée pour organiser le qui fait quoi ?
A l'heure de ce qui est possible aujourd'hui, je pense qu'il faut une personne qui centralise le qui fait quoi. Le mieux est encore que ça soit toi qui t'en charges.
Et que au fur et à mesure que les gens choisissent ce qu'ils veulent faire, tu remplisses une sorte de liste présente dans ce pas à pas des pièce déjà prises et des pièces dispo, non ?
zeloko Ok pour moi.
Sinon il te suffit d'ajouter 2 boutons, un je participe et un autre je fabrique telle pièce fastoche pour un bricodeur comme toi non ? lol
On pourrait peut être organiser ça dans un processus non ? Une tache par pièce une pièce par personne ...
Ça marcherait ?
Doucement les gars ... quand je lance les trucs personne s'en sert et d'un coup vous voulez tout :P
Désolé, mais les pas à pas comme les processus ne sont pas multi-utilisateurs pour l'instant ;( Ca levait plus que questions que de réponses. C'était le but, mais j'ai préféré occuper mon temps à développer l'envergure du site que de le rendre 100% collaboratif et qu'il n'y ait personne ;)
Bref, dans un premier temps, faisons simple pas de code spécifique en plus, non ? Je pourrai pas m'y engager pour l'instant, j'ai pas assez de temps pour.
Une petite liste de toutes les pièces avec le nom de qui l'a choisie en face ça ne peut pas suffir pour l'instant ?
Un truc du genre (avec un petit schéma qui donne la forme que chaque pièce) :
Pied 1
Pied 2
...
zeloko c'était juste une plaisanterie en passant j'ai commencé un article du qui fait quoi ? je le tiendrai à jour au fur et à mesure.
On est des utilisateurs normaux quoi !!
Sinon je ne pensais pas à un truc multi utilisateurs mais plutôt d’utiliser un processus comme liste de qui fais quoi (avec le nom dans le titre de la tâche) et on communique en MP pour donner un avancement à la personne qui gère ça ... c’est peut être pas très pratique ... je sais pas ...
Barf, ça me semble que ça risque d'éclater l'info, non ?
Je préfère l'idée d'une liste de pièce avec un pseudo en face. Cela me semble plus simple.
bon !!!! je vous surveille
c est tout ce que je peu faire ,a part écouter la musique de deep purple sur la vidéo (une de mes musiques preferée) ,mais bon on s en f.............
Merci de me rafraichir la mémoire. Elle me paraissait familiaire.
sylvainlefrancomtois content que la musique te plaise. La prochaine fois je mets du Led Zepp
rien que pour toi
Blague à part tes conseils sont les bienvenus c'est toujours un plaisir de te lire.
cereus45 ac/dc ou ozzy c est plus mon trip ;) mais bon je vais pas faire le difficile ,donc ac/dc loll
Je propose un compromis : ZZ Top !!
top !!!
Bon les gars si on parlait un peu du sujet de ce post : NinjaRouge tu fais des copeaux avec nous ?
Absolument !! J’ai dit je sais plus ou que je m’occuperai bien d’un bout d’assise s’il y a encore de la place !
Question pour ceux qui se lanceront sur un dixième d'assise : est ce qu'une impression à l'échelle 1/1 faciliterait la "standardisation". Si oui je veux bien m'en charger et envoyer par courrier un exemplaire à chaque coordinateur d'un cinquième du projet.
Bonne idée. Mais sinon, il est aussi possible d'exporter ce bout de plan en PDF et d'indiquer la méthode pour l'imprimer à l'échelle 1:1 dans le plan.
Je vois que tu as mis toutes les dimension sur le schéma plus haut mais à mon sens, elles ne sont pas toutes aussi importantes. Peut-être manque-t-il surtout les angles entres les côtés et l'hypoténuse. Le 99° n'est que le résultat des deux autres. Enfin du moins dans ma méthode de fabrication ;)
ok pour la méthode d'impression mais je me suis rendu compte que d'une imprimante à l'autre il peut y avoir une variation.
Je vais refaire un schéma avec les angles.
En principe, si le PDF n'est pas changé d'échelle à l'impression (genre option "ajuster à la page") il devrait s'imprimer comme il faut.
zeloko oui puis après a chacun de vérifier les côtes on est tous boiseux n'est ce pas.
Je mets un schéma complémentaire avec les angles dont résulte le 99 °.
zeloko ma petite participation !
sylvainlefrancomtois merci, ça me plairait beaucoup d'étudier l'art du tracé. Même si tu l'as un peu évoqué dans ton traité sur l'escalier. Il y a beaucoup à apprendre. on va pouvoir l'ajouté au pas à pas de tchabissi
Pourquoi pas !
Pour ma part je vais refaire une épure complète à l’echelle 1 ça m’entrainera Pour le trait et je partirai de ça pour faire mes reports sur la pièce avec des compagnons comme pour la maquette d’escalier ...
NinjaRouge +1 c est cool ta philosophie des choses ;)
Bonjour, super idée, je veux bien en être également.
C'est fait !
cereus45

Belle idée je veux bien participer.
je remet ici ma petite participation pour ceux qui aiment le trait ! pour une épure à base pentagonale !
Super sympa comme idée je veux bien participer.
Je vais trouvé un peux de temps pour vous.
Avec plaisir !
cereus45 le tableau est à jour? pour ma part 10eme, j'ai pour les angles
Rapporteur
Rapporteurs deux, fause équerre deux, match nul
À tous ceux qui souhaitent participer : indiquez moi le n°de la pièce qui vous inspire (voir tableau ci dessus que je tiendrai à jour).
Un tier pied en 25/26 stp, vais essayer en 5 essences.
dependancesbois c'est toi qui vois pour les essences gardes bien à l'esprit la notion de solidité pour que notre projet tienne debout et un coroyage nickel pour que ca rentre pilpoil dans l'encoche de l'assise
Ok je m'y applique
dependancesbois vu avec cereus45 pour le deuxième pied quel pièce souhaiterai tu réaliser pour ma part j'ai choisi 1/10 d’assise
tiens j’ai pas tous lu encore une fois!!!!!!!
voltig-eure '
'
dependancesbois je te propose de réaliser la pièce de ton choix puis rdv au resto à 50% de la maison échange de poignées de
casse croûte et à suivre
voltig-eure c’est une idée plus qu'à voir quand. la moitié du chemin ça fait vers le mont st Michel presque!!!
dependancesbois &voltig-eure si vous croisez la mère Poulard faites lui une bise de ma part
voltig-eure et dependancesbois si ça vous dit, je veux bien participer à cette rencontre.
je suis situé presque entre vous deux, c'est la raison pour laquelle je voulais participer à ce pied.
Marco61 carrement, faut juste trouver une date. je vais essayer de faire ma pièce la semaine prochaine.
Yes, il y a également JC 61 qui rejoint l'idée pour la pièce 7
parfait tout ça.
Une des difficultés de ce projet c'est le fait que l'on soit trés éparpillés. Je propose donc qu'il y ai un coordinateur pour chaque pied afin de faciliter la collecte et d'organiser l'assemblage des 5 pièces du pied dont il se porte garant.
Je prends en charge la coordination du pied 1 et la fabrication de la pièce n°3 (tier pied #1)
Vue que je ne suis pas très loing de chez toi je veux bien faire partie de l'équipe du pied 1et prendre l'assise 1.
Affaire entendue
stef88 une pièce au choix
tu le désigne d'office ?
Oui c'est une personne très timide, et qui travaille d'autres bois, en plus il est plus grand que moi, plus bavard et c'est le grand frère, voilà voilà
ptit con va hihihi
Je veux bien partir sur un tier pied n'importe lequel .
ok super
A voir avec Wil si vous faites équipe avec moi ou si vous commencez une équipe de Bourguignons..
Pour ma part ça me va de faire partie de ton équipe, pour le tiers de pied n°2 par exemple. Je n’ai pas trop de temps (dans ma tête en tous cas !) pour synchroniser une équipe !
Bon j'ai pas eu le temps de passer plus tôt désolé , Du coup tu ma placé ,c’est très bien .Je finit un projet en cours (mais je réfléchi a mon bout de pied) et j'attaque après.
au fait il y'a une date prévu pour l'assemblage final ?
captain c'est vrai on n'a pas parlé de la date (ni du lieu d'ailleurs)de l'assemblage final. J'attends que les équipes soient au complet pour proposer quelque chose.
Globalement le plus difficile sera de rassembler toutes les pièces du puzzle donc plus tôt vous aurez terminé vos pièces plus se sera facile d'organiser les rencontres pour les assemblages intermédiaires (pour chaque équipe de 5) puis pour l'assemblage final (avec les 5 équipes et + si affinité..)
captain tu boite?
n'oubliez pas de faire des photos et/ou des vidéos de vos copeaux je ne sais pas encore comment centraliser tout ça mais ça peut être sympa de faire un petit montage vidéo de cette aventure...
tien ca me tenterait bien de faire un bout moi genre un dixieme d'assise ...
Je veux bien m'occuper d'un tiers pied du pied n°3. Avec Ninja rouge on est assez proche au niveau géographique.
Merci cereus45 pour la gestion de ce projet.
Cool un collègue Rhone-Alpes-Auvergnin ... Auvergne-Rhone-Alpin ... Bref un gars du coin quoi !! Bon ..... Haut Savoyard ..... Bon on peut pas tous être parfait mais c'est un moindre mal
Mon dieu qu'est-ce que c'est con un dauphinois quand ça s'y met !!

Quand on aura finit nos pièce je vous invite à la maison pour coller tout ça !
Je veux bien partir sur l'assise mais je ne sais pas si quelqu'un est proche de mon secteur pour le reste.
Je te propose de commencer une nouvelle équipe pied n°4 et d'y intégrer TitoM du 95 je crois
Je suis partant pour un dixième d'assise.
Bonjour à tous.
Je suis au regret de vous dire que je ne pourrais pas assurer sur ce projet, je suis sincèrement désolée. Mais 2 grosses commandes sont arrivées hier (et je ne me plains pas.. Bien au contraire), et y'a du boulot ! Comme je suis seule, je ne peux pas trop me disperser.
Plein de courage à vous ! Bon projet...
Désolée de vous lâcher...
Bonne journée
Ok bon copeaux !
Je veux la pièce 10 du pied 2 si c'est toujours dispo.
Étant proche de NinjaRouge, je suis partant pour un tier du pied n°3
Ok super
Diantre palsembleu et Cornegidouille !!! un Turripinois !!
c'est bon ça !! 
Non raté
Je suis un Chapeland ;)
Bah à peine une enjambée de plus !
Wouep !
Désolé, j'ai oublié un mot. Je voulais dire : je viens bien la pièce...
Loin de moi d'être directif.
bienvenue à toi!
Ben si tu la veux tu la fabriques toi même
Idée marrante allons-y je m'inscrit (quelle piéce dois-je fabriquer et dans quel délai?)
Merci, dans le grand choix de pièces à réaliser la pièce 7 simple et technique puis un rdv du pied 2 pour regrouper le cinquième et faire suivre au destinataire final ( je sais pas qui pour l'instant)
Sois le bienvenu JC 61 !
Il reste 11 pièces à fabriquer :tu as le choix ...
Si tu es partant pour un dixième d'assise il reste une place dans l'équipe de voltig-eure pour le pied N° 2. Mais tu peux aussi choisir une autre pièce (voir l'article qui Le qui fait quoi ?).
Tiens nous au courant
alors c'est parti je prends la piéce 7 .Je te l'apporterais dès que faite
comment compte-tu faire l'assemblage?tout est possible sauf domino(je n'ai pas de machine)
A+
Pour m'aider à superviser l'avancement des travaux, je vous propose de m'envoyer un MP lorsque votre pièce sera terminée. Une petite photo en PJ sera du meilleur goût.
Si possible faite un maximum d'autres photos et vidéos sur un support(clé USB,carte sd ... qui suivra votre pièce jusqu'à l'assemblage final.
Merci d'avance
DELAIS
Si on fixait mi-juin pour l'assemblage final ?
A cette époque comme l'a écrit Boris "C'est le temps de tâter de la merguez autours d'une petite chopine et de parler copeaux jusqu'à plus soif."
Je plussoie !!
Bonne idée!
mi juin ça parait pas mal !!
Je ne sais pas si cela à été évoqué au détour d'un commentaire, mais pour l'assemblage final, comment on va Faire ?
Jeu latéral des dominos de liaison, avec un serrage concentrique ou une autre méthode ?
Je vais faire un essai mais avec mes expériences de ces assemblages non jointifs en forçant un peu ça doit rentrer même sans jeu latéral. C'est plus facile avec 4 pieds c'est sûr mais là c'est pour les 5 ans
OK
C'est vrai qu'avec tes ballons de foot les pentagones tu connais ;)
Et puis comme ça la résistance n'en sera que meilleure !
J'ai fait le test voir Photo dans les commentaires du plan . Quand on a les bons outils
Je pense qu'il faut fabriquer les dominos en enlevant 1/10 par rapport aux dominos festool et ça rentrera comme p... dans m....
C'est Bon, je suis rassuré

Lourde responsabilité pour celui qui va manier la masse
Didier c'est pour ça que je prévois l'assemblage avant l'apéro
()
Super idee, beau projet, en ce moment je vis plutôt à revers le blog qu a l atelier et oui heureux papa depuis 3jours dont l ateliers pas de suite ...
Amusez vous bien
S'il n'y a personne d'autre dans mon secteur je ferais tout le pied 4
Salut la compagnie!!

Je suis tenté par le pied trois. Il reste la pièce 14 si je lis bien. Mi juin, on devrait trouver le temps de tâter de la merguez. La pièce a l’air simple. Je crois que je vais y arriver.
Inscrit!!!
Excellent Cereuse45 , belle initiative
Je pense que tu as les compétences pour cette pièce
.Merci pour ta participation et pour ton compliment.
Merci NinjaRouge qui se porte volontaire pour manager le team pied3.
NinjaRouge a l’etoffe D’un vrai chef de projet...


Chef de rien !!!!


Democratie Participative !!! c'est le mot d'ordre !!
Et puis bon, vu qui il y a dans l'équipe c'est moi qui vais être le plus dur à gérer !!
En voila une belle idée, bravo Cereuse45.
Je veux bien faire une Dixième d'assise (17, 21 ou 22).
Content que l'idée te plaise
.
Je te propose la pièce 21. En espérant que d'autres géographiquement proches de toi partent sur le même pied
cereus45 Reste donc à ce mettre au travail.
Effectivement si quelques boisseux du coin (Franche comté , Bourgogne, Suisse...) ça serai bien.
Nico39 oui ce serait idéal mais si d'autres sont de plus loin je m'organiserais pour centraliser les pièces.
Bonjour Cereuse45, je veux bien faire la pièce #18.
cool c'est parti
En ce qui concerne la finition, je vous propose de fournir une huile dure à appliquer le jour de l'assemblage final. Certains m'ont fait remarquer à juste titre que de faire chacun sa finition, avant la mise à longueur, n'était pas forcement le plus judicieux. Et vu le patchwork qui se dessine uniformiser la finition me semble une bonne chose. qu'en pensez-vous ?
Oui, c'est une bonne idée. Je n'avais pas pensé à la finition, je pensais en effet livrer ma pièce brute !
je suis d'accord avec ça ,mieux vaut faire une finition finale le patchwork d'essence suffi amplement .
Bonjour
Votre projet est vraiment mené de main de maitre. Bravo au maitre d’œuvre.
Je viens de fabriquer 6 tabourets "zeloko + toutenbois" à 4 assises.
Pour 5 assises, je ne vois pas comment, avec des dominos, on peut les assembler sans faire des dominotages de la taille du domino.
On est obligé de dominoter à la deuxième, voire à la troisième largeur.
Cela va laisser un jour de chaque coté du domino. C'est dommage.
A moins que vous montez les assises différemment.
Amicalement
je met mon grain de sel !! peut être comme cela pour donner de l entrée ! mais il faut monter tout en même temps !!
cereus45 propose une solution dans les commentaires du plan, photo à l'appui ;)
Et pour le collage des cinquièmes d'assise, qu'est ce que cela va donner si les morceaux ne sont pas avec le même taux d'humidité ?
Pas de risque au séchage ?
Si c'est un risque mon conseil c'est d'utiliser du bois bien sec.
Alors pour l'assemblage je persiste et signe pour moi ça rentre sans élargir la mortaise ni travailler les dominos. Donc je lance un pari 10 euros( par domino) à verser à l'air du bois si j'y arrive !
Cela va être très chaud de monter 10 dominos en même temps.
Va falloir bien préparer son collage et son serrage.
Je me disais qu’il serait judicieux de faire les mrtaises à la domino une fois tous les morceaux réunis, afin d,anticiper les variations d’hydrométrie et ainsi usiner toujours avec la même fraise...
oui c'est l'idée de départ d’ailleurs je n'ai pas représenté les mortaises sur le plan.:k
Même fraise, même machine en conservant le réglage
de toute façon pour moi le problème est résolu je n'ai pas de machine à faire les dominos donc je compte sur vous pour les faire dans ma pièce
Pas de problème, ont trouveras l'outil
Voila étant en vacance entre deux sorties de ski de fond j'ai fait ma pièce (reste un petit ponçage). En espérant que ça motivera des personnes a se lancer pour qu'on puisse finaliser le projet.
Super ! une belle part du gâteau d'anniversaire merci Nico
Je n’ai pas regarder plus que ça le plan, mais elle fait qu’elle epaisseur?
Il a bien fait ça cereus45 puisqu'il l'a écrit...
L'épaisseur choisie est de 26,00 mm.
C’est sûrement un effet d’optique, sur la photo je dira au mini du 35 voir du 40

A tous : je vous donne la technique de Wil qui consiste à façonner sa pièce en laissant un peu de gras puis de la laisser reposer dans une pièce sèche de sa maison, une petite retouche éventuelle juste avant l'assemblage cela évitera les problèmes évoqués plus haut par Didier
Bonjour à tous.
cereus45 pour ma demi assise, je voudrais connaître le sens de la pièce.
Parce que si je la signe sur le dessus c'est pas terrible.
Si c'est au crayon de papier on peut effacer
Bonjour à tous !
Je suis en charge de la pièce #18.
Les commentaires ci-dessus sont un peu touffus et j'ai essayé de lister les points importants histoire de ne pas faire de bêtise :s J'ai également mis des questions en suspens en gras.
L'assemblage doit être finalisé mi-juin. Y a-t-il un planning un peu plus détaillé ?
Pour l'aspect communautaire, il faut signer la pièce (pyrogravure, feutre, sculpture, peinture décorative) et ne pas oublier de prendre des vidéos/photos. L'essence est libre et la décoration de la pièce tout autant (à condition de ne pas décorer sur les faces d'assemblage).
Une fois la pièce finie, prévenir cereus45 par message privé. Éventuellement lui fournir photos et vidéos. C'est bien ça, cereus45 ? C'est toi qui centralise tout ça ?
Les points techniques, maintenant.
Il ne faut pas mettre de finition avant l'assemblage. En effet, si au moment de coller les pieds 1,2,3 (par ex), on se rend compte qu'ils n'ont pas la même longueur, il faudra scier au même niveau (sinon, l'assise sera inconfortable :D). Donc, la finition individuelle, on oublie et ce sera the last man qui fera ça. De même, pour les pieds, prévoir une sur-longueur. Les 5mm de marge visibles sur le plan sketchup plus haut correspondent-ils à cette sur-longueur ?
Je ne sais pas pour vous, mais je trouve que le bois joue pas mal quelques fois. J'ai à côté de moi des pièces pour un cadre de porte que j'ai corroyé il y a trois mois et qui a quand même un peu bougé ! Alors, si on fait 25 pièces venant des 4 coins de France, avec des hygrométries différentes, corroyées à des moments différents, gare aux déformations ! Deux posts plus haut, cereus45 propose de corroyer la pièce en laissant une légère épaisseur, la placer dans une pièce sèche de la maison, puis la corroyer aux dimensions finales ensuite. C'est bien ça, cereus45 ? La retouche dont tu parle est une retouche plus minime qu’effectuera le coordinateur du 1/5 de tabouret ?
Voilà ! Dernière question : Il n'y a vraiment personne dans la région de Toulouse ?!?
Alors dans l'ordre :
beau travail, doit pas être évident à faire avec précision ? bonne chance
Bonjour à tous,
L'équipe du pied n°1 s'organise pour assembler son 1/5 d'assise le 28/04 merci Wil qui nous reçoit chez lui.
Il nous manque toujours 6 volontaires ce qui inquiète ceux dont l'équipe est incomplète. Certains me proposent de faire plus de pièces: cela permettrait de boucler plus facilement le projet mais cela ferme la porte aux retardataires et limite le nombre de rencontres...
Qu'en pensez vous?
Salut Cédric ! Il y a quelques jours je me disais que le pas à pas était descendu loin dans la liste. Une des solutions serait peut-être que tu lui redonnes une petite jeunesse avec une mise à jour pour qu’il ressorte en tête et qu’on arrive à trouver les derniers volontaires ?
Yeah, cool ... ça avance !!
Sur le principe je veux bien faire plusieurs pièces même si c'est pas forcément l'idée de base.
Comme l'a dit will le remonter dans la liste afin qu'il ne soit pas oublier serai bien, nous voila au printemps certains vont peux être (j'espère) se manifester.
Je vais me creuser la tête dans ce sens car c'est vrai que de déroger à l'idée de base ne m'enchante pas plus que ca.
Bonjour à tous.
Je colle ma pièce vendredi et la termine dans le weekend.
Bonne journée.
cereus45
la page la plus lu du site étant la page création ne serais-il pas intéressant que les personne qui ont déjà fabriqué leur pièce la fasse paraître sur cette page (ce que je ferais dès que j'aurais faite la mienne )cela permettrais de relancer l’intérêt et peut-être de trouver les personnes manquantes pour finaliser le projet
JC 61 Effectivement, c'est un moyen de relancer l'intérêt. J'avais pensé publier dans le pas à pas un article chaque fois qu'un pied sera terminé mais j'encourage ton initiative tout comme les bonnes volontés en général.
cereus45 une autre idée serai de modifier les pieds pour les passer en 2pièces et non 3. On "gagne" 5 pièces sans modifier le concept de base d'une pièce/personne.
Je ne suis pas convaincu que mettre sa propre pièce en création soit l'idéal : cette rubrique est destinée à une création terminée. Et quand je regarde ma pièce, ce n'est quand même qu'un simple tasseau...!!!
Par contre mettre à jour le pas à pas à chaque fois que quelques participants ont terminé la leur je trouve que ce serait le mieux. Mais c'est facile à dire, c'est pas moi qui le fait !!!
Voici donc mon oeuvre d'art, avant et après !
Nico39
ok mais que deviennent les pièces déjà fabriquées
Wil tout le reste est parti en copeaux
C'est vrai que quand j'ai regardé les photos ça m'a fait la même impression ! Mais non, car j'ai un super outil qu'on appelle communément...déligneuse !!!
Nico39 sans modifié le concept une pièce par personne mais on sort du thème 5 et certains se sont déjà impliqués et fabriqués leur pièces. Je ne pense pas modifier le plan d'origine.
Bonjour à tous,
J'ai découvert l'Air du Bois depuis peu mais le site est top, dans son contenu, dans son organisation et surtout les membres et la bonne ambiance qui règne.
Bonne Anniversaire à l'Air du Bois.
Malheureusement, je ne peux participer au projet car pour l'instant je pense que je suis bien trop novice et qu'il me semble que nous sommes très peu de boiseux dans l'ouest... Un manque de bois ?
Je vais suivre le projet avec attention et j'espère que pour les 10 ans j'aurai assez progressé pour participer.
BIGBen
Peu importe tes talents et l’eloignement, si tu veux participer tu es le bien venu. Nous trouverons une solution à tous les problèmes techniques et au fait que tu sois un peu loin. Pour connaître les boiseux de ta région tu as la carte dans la rubrique Boiseux. Tu cliques sur la carte et tu zoom sur ta région.
Bien venu BIGBen
J'aurais pas dit mieux niconathy. Content que tu apprécies ce lieu ;)
BIGBen J'ai voulu que ce projet ne soit pas "élitiste" en proposant des pièces simples et d'autres plus élaborées pour que chacun quelque soit ses moyens techniques ou financiers puisse participer. Le but premier étant de promouvoir des échanges sur la plateforme et des rencontres pour de vrai de l'autre côté de l'écran. Aujourd'hui si tu as l'envie de participer à ce projet, je pense qu'un morceau de Bois d'arbre et une scie te suffissent pour commencer ensuite comme l'a dit niconathy nous trouverons des solutions.
Bon alors voila ma est faite MAIS ...
Quand j'ai voulu la mettre au cotes :
Mas satanée foutue machine de me... a décidé de me bouffé équerrage qui était parfait au début.J'ai démonter ma degeau rabot plusieurs fois et j'ai jamais trouver pourquoi "des fois "elles se mets a raboter de biais et qu'ensuite ça reviens comme c'est venu.>J'ai donc rattraper mais deux soucis ;
-Je suis au cotes finales ,alors que j'avais prévus du gras et si elle bouge plus de marge
-Les pièces ne sont plus symétriques.
Alors j'ai une pièce finit mais qui ne me satisfait pas ,j'ai donc relancer un collage et on verras si j'ai le temps de la refaire cette semaine .
Désolé que ce projet te cause tant de problémes. Moi cette pièce me convient si elle est aux côtés pile poil mets la dans un sac plastique hors d'air et à température constnte jusqu'au jour J. Après si tu veux refaire une autre pièce libre à toi.
Ho c'est pas le projet qui me causse des problèmes,c'est ma degau-rabot c'est pas la première fois qu'elle me fait le coup.Ayant été technicien de maintenance pendant presque 20 ans et ne pas trouver pourquoi elle fait ça ,ça c'est frustrant et agaçant. La pièce est bonne mais c'est pas ce que je voulais au départ.c'est pas grave j'en est déjà relancer une autre,au pire ça en ferras deux et on auras le choix .
J'ai de beaux morceaux de Red Cedar (en français je ne connais pas le nom) qui traînent de la construction d'une pagaie groenlandaise.
Seulement, c'est une essence légère et tendre (mais très jolie et d'une belle finesse). Si possible, je ferais bien un "Tiers pied 2": pris en sandwich entre les deux autres tiers, ça ne devrait pas poser de problème...
Me dire si contre-indication, je trouverai alors autre chose.
cereus45 Je vois qu'il y a 2 dixièmes d'assise qui n'ont pas trouvés preneur en voici un que je peux t'envoyer prochainement. Chêne, merisier et framiré: portion en 5 tranches.
Joli !!
kajmed Super chouettes la pièce et la démarche merci Jacky
zeloko merci
cereus45 merci pour le projet du cinq pattes
hello Jacky , c est presque une marche d escalier ;)
Il pourrait nous faire un cinq pattes quart tournant sans problème
j'ai fait des paliers d'hélicoïdaux rayonnants de cette façon d'une seule essence de bois.
Bon Ben voilà nous sommes pil poil dans le thème 5 c'est le nombres de postes restants
cereus45 la pièce je te l'envoie ou je l'envoie à Nico39 vu que je suis dans l'équipe 5.
Si tu l'envoies directement à Nico39 Vérifie avec lui en fonction du parement que tu as choisi que vos pièces soient complémentaires.(d'après les photos cela semble être le cas)
Ma pièce est réversible donc ça doit coller, je vois avec lui.
Du coup moi aussi j'ai fait une deuxième pièces, pour compléter l'assise.
Elles sont en meurisier, frêne, acacia.
C'est du bois qui vient de mon village que j'ai abattu et débité.
Un vrai produit local.
Je pense que l'on peut proposer d'envoyer cette pièce à l'équipe pied N°4
Qu'en dites vous ?
Pas de problème pour moi
Pour info je passe chez kajmed chercher ça pièce vendredi. Je découvre que pas mal de pièces sont faites (pied 1 quasi fini) un petit effort plus que 4personnes pour des pièces relativement simple.
Super
Pour le team pied n°1 RDV le 28/04 pour l'assemblage je vous ferai un petit topo.
Transmission de la pièce effectuée!
kajmed et Nico39 super merci à vous deux !
D’ailleurs Nico 39 ,lors du voyage pour l'air du barbecue tu m'avais dit avoir la même degau rabot que moi moi.A tu déjà eu le même problème que moi ?voir message plus haut .
Non j'ai jamais u ce problème, par contre j' ai déjà u des problèmes de chaîne en dessous des 4vis sans fin pour la montée/décente de la table. N a tu pas un problème de ce côté avec un cran de couronne casse, tendeur detendu ?. La manivelle était t elle pas dur à ce moment? Pour moi c est la seul raison ta chaîne à sautée un cran d une des 4vis quand tu es monte puis est revenu quand tu as fait un tour de descente . Bon courage je me suis bien fait chi... Couché sous la degau pour tous remettre en place!!!
Je viens de mettre à jour ce pas à pas 1/5 ème du boulot est fait !
De votre coté où en êtes vous ?
Excellent le montage Cereus45 ,On a passer une très bonne journée , un grand merci a Will et toute sa famille pour leur accueil.
Un échange tout en simplicité et convivialité , je souhaite une aussi bonne journée a toutes les autres équipes et vivement la prochaines rencontre .
Yeah, bravo à la team n°1
!!!
Et merci de nous partager cette journée. Content de vous voir sur l'écran les gars !!
Heureux de pouvoir partager cette rencontre. Nous avons atteint la dimension essentielle à mes yeux : celle qu'aucun instrument ne mesure ! Elle se devine sur les images j'espère.
Merci à Wil et à sa famille pour leur accueil chaleureux.
Belle journée de partage entre boiseux.
Repas très sympa accompagné des spécialités de chacun.
sympas la vidéo avec la douce voix de Bon Scott !!! vous avez du passer un bon moment , belle équipe !
petit coup de pub qui vas bien avec la video lairdubois.fr/...#_comment_66059
Bien joué l'équipe 1
Je vient perso de faire les mortaises a la domino pour assembler les deux pièces d'assise. Après faudra attendre des future joueurs pour compléter l'équipe!!!
Merci Nico39!
Je suis revenu de chez Wil avec des pièces en rab je peux t'en envoyer pour compléter ton pied mais du coup question rencontre ça va limiter... tu risques de finir par être une équipe à toi tout seul !
Lol une équipe a moi tous seul non tu oublis kajmed et dneis
Pour le pied pourquoi pas, dans ce cas je veux bien faire la pièce qui manque.
Nico39 je parlais de la phase assemblage en équipe. Je n'ai pas oublié kajmed et dneis que je remercie de leur engagement.
Nico39 l'unité de longueur du Ban d'Anould correspond elle a celle du Bourg de Champagnole?
Lol oui l'unité semble la même
Ben merci à vous quatre d'avoir fait le déplacement pour cette journée d'une efficacité redoutable : 1/3 du temps à bosser, 1/3 du temps à manger et 1/3 du temps à discuter !!!
Mais l'objectif est atteint : assembler notre 1/5 de pied et se rencontrer autour d'un projet commun.
Je ne saurais à tous de vous conseiller de vous voir pour assembler vos pieds, c'est un moment vraiment sympa !
A tous, il faut se rendre à l'évidence trouver 25 volontaires s'avère beaucoup plus compliqué que prévu. Que pensez vous de fixer une date butoir (genre fin mai) pour fédérer les 4 boiseux manquants. Au delà de cette date on active le plan B: pour compléter le puzzle on envoie des pièces aux équipes incomplètes.Ceux qui n'auraient pas l'occasion de se rencontrer pour l'assemblage d'un pied auraient une séance de rattrapage pour l'assemblage final.
Pour ce fameux rendez-vous reste à définir un lieu et une date. De mon coté fin juin ou début septembre m’irait bien. Le lieu (mon atelier est ouvert mais connu par la plupart d'entre vous), géographiquement parlant Qu'en pensez-vous ?
Ça fait beaucoup de questions mais c'est ça le partage non ?
Il n'y a pas de problème, que des solutions ;)
Il me semble intéressant de commencer à fixer une date, en effet. Sans quoi, on fini tous par remettre à plus tard.
D'autant que le printemps arrivant, je pense qu'il y a moins de monde devant son écran pour relancer la machine.
Est-ce qu'une partie de l'assemblage final ne peut pas être faite à l'occasion du BBQ de cet été ?
Merci de l'énergie que tu y mets cereus45 !
zeloko De mon côté, je ne peux pas me libérer pour cette date mais dans l'absolu pourquoi pas. J'ai évoquer cette possibilité samedi chez Wil mais au final nous avons préféré l'idée de séparer les 2 événements.Je ne souhaite pas parler au nom de tous. A chacun de s'exprimer sur le sujet.
Ok, c'était juste une idée ;)
zeloko oui toutes les idées sont bonnes à dire !
Attendons de voir ce qu'en pense les autres.
zeloko Comme on en a parlé autour de la table de Wil,les 2 manifestations ont des buts différents ,donc comme les autres je pense qu'il serais mieux de séparer.Et d'un point de vue plus personnel,ne pouvant pas participé au BBQ cette année ,j'aimerais bien pouvoir participé a l'assemblage final histoire de ne pas être plus frustré que je ne le suis déjà.
Et pour la remis du "colis" au "patron" Will proposais le 24/12 au soir chez Boris donc c'est noté j'y serrais
C’est aussi ce que je m’apprêtais à répondre. C’est vrai que ça a été un sujet de discussion samedi.
Lorsque l’on bosse à plusieurs, qui plus est avec des pièces de bois de provenances différentes, tout est plus long : ajustement des pièces les unes aux autres, choix des techniques d’assemblage, parlotte, rigolade, etc ...! Du coup on s’est imaginé que si l’année dernière au barbecue chez Cédric il avait fallu bosser en plus du bon temps pris tous ensemble ça n’aurait pas été simple !
Ce sont un peu les grandes lignes qui nous ont fait dire qu’il valait mieux séparer les 2 événements.
Je vois que tu as re-bossé sur le pied Cédric, il n’était pas si propre que ça hier !
Pour la date de l’assemblage final, début septembre m’irait mieux !
Non à peine retouché ha si j'ai retaillé un peu ta pièce pour pouvoir fermer la porte de l'atelier
cereus45 ah ah mais fallait pas !!!!! c'était pour le tenir pour la finition au pistolet ...

et je confirme .. je trouve qu'il a changer ... mais pas trop ca va :)
ravi de vous a voir vu !
et merci Wil pour l'accueil
Bonjour !
Alors, je ré-interviens sur ce sujet après un long moment d'absence :s (mais je suis heureux comme un pape : j'ai déligné pour le corps de ma comtoise :)
Pour rappel, je fais la pièce 18 qui est le tiers de pied #1 du pied #4. De ce que j'ai compris, chênedinspiration gère l'assemblage.
Ce qui me permet d’amener mon grain de sel, c'est que je peux (éventuellement, ça reste à fixer entre nous, c'est si ça se télescope bien) l'aider à réaliser le 1/5 de pied. En effet, il habite juste à côté de mes parents et j'y passe pour les vacances.
En bref, je suis en train de voir pour lui faire parvenir ma pièce, ce qui sera fait en temps et en heure que l'assemblage final soit en juillet ou en septembre. Par contre, je proposerais plutôt septembre puisque (ça reste à voir avec chênedinspiration) j'aurais éventuellement la possibilité de participer à l'assemblage du pied.
Et petit sondage : il y en a beaucoup qui on customisé leur pièce avec de la sculpture ou de la peinture ?
Etienne31 de mon côté, j'ai récupéré 2 dixièmes d'assise ce weekend je m'apprête à envoyer à chênedinspiration. Voyez ensemble s'il est possible de caler une rencontre entre vous pour l'assemblage de votre pied. Tenez moi au courant svp
Je suis allé enquêter du côté de la Normandie à l'Eure actuelle les 2 dixièmes d'assise du pied n° 1 sont rassemblés chez voltig-eure.
Merci voltig-eure qui nous a reçu chez lui pour une rencontre entre 4 Airboiseux (voltig-eure, JC 61, Fula, cereus45) et leurs petites familles le temps d'un barbecue à la braise capricieuse.
Du coup cereus45 tu manges chez qui le WE prochain???!!!
Wil ben
Peut-être chez moi pour changer un peu.
ok a samedi! et pas de salade on viens à quel heure? moi aussi je suis près à monter si tu vois ce que je veux dire!
Bon alors ça donne pas envie aux autres équipes tout ça ???
bonjour a tous et de trois oui trois pièce dans l'antre de la bête,
Merci à Marco61 JC 61 pour leur pieces reste à cereus45 de tenir le tableau à jour, ma pièce est également finie, stef88 devrais faire partire son pied dans les jours à venir,
le 14 & 15 pourquoi pas
Donc de ton côté ça ce précise c'est super
Je crois que dependancesbois a fait une pièce en rab tu pourras me la faire parvenir avec l'ensemble je pense qu'elle pourra compléter les pieds en manque de volontaires ( pied 4 ou 5)
Merci les gars !
Hello la compagnie,
Je viens de terminer mon tiers pied no 2.
Comme c'était demandé, j'ai fait quelques photos de la confection !
Pas facile de sortir -à la main- une pièce avec des dimensions précises alors que j'ai plutôt l'habitude de faire en relatif... Mais bon, bel exercice finalement.
La pièce est un peu longue, mais ça permet de choisir ce qu'on garde (et surtout ce qui est au plus près des côtes demandée ;)!). J'espère que ça ira.
PS: j'ai laissé tomber le red cedar, c'est vraiment trop tendre.
Super et à l'ancienne en plus !
dneis merci pour ton engagement et pour les photos ! Reste à organiser le rapprochement avec les pièces de kajmed, et Nico39.
Parfait il nous manque donc plus que deux pièces donc. Pas de nouveaux participant?
Côté délais de livraison que décide t'on?
Nico39 Je propose de repousser la livraison en semaine 25 du (18 au 25 juin). L'idée, c'est de récupérer les pieds chez moi pour les préparer pour le grand jour (mettre à longueur, casser les angles ponçage finition).
Nico39 pour les 2 pièces manquantes je me propose de te les envoyer
salut a tous
voila mon 1/5 envoyé mais surtout dans les mains de voltig-eure
comment met t'on les video ?
envoyé a max et bien reçu pied en mirabellier (he oui bois local) maintenant a toi frangin de suivre
rendu fini
Super ça avance !!
Aller les gars on y est presque !!!
gravure des prénoms des boisseux participant sur cette partie
voici la vidéo
MERCI
stef88 merci pour la vidéo
voltig-eure prêt à prendre ton pied pour l'assemblage ?
plutôt sympa le coup des prénoms bonne idée
Hello la compagnie !
J'ai été un peu distant ces derniers temps sorry !
Je pense qu'il est temps de faire le point sur l'avancement du projet.
Pour finaliser ce projet je propose que chaque équipe m'envoie chez moi son pied assemblé avant le 30 juin. Je me chargerai de la mise à longueur des 5 pieds et "d'harmoniser" la finition pour le grand jour de l'assemblage final qui devra se faire avant la rentrée de septembre.
le point minute l'humanitée
??
+1 ?
J'ai fait ma partie, mais je n'ai pas pu récupéré la pièce d'Étienne. Je vais réessayer de fixer un rdv cette semaine pour coller l'ensemble.
Super
merci
Me voila de retour de quelques jours de vacance. Réception des colis et hop au boulot. A noter qu'un serre joint par mégarde a abimé un poil une pointe de la pièce de kajmed grrrr (photo 3). Reste a finir le ponçage.
belle pièce composite , très sympas visuellement !!
Le petit défaut sera vite atténué et on ne verra plus rien ( fallait pas le dire, personne n'aurais vu) Je suis content de notre pied, il a de l'allure! Merci Nico39
Sympa !
Ça fait tout chose de voir sa pièce collée avec les autres, au milieu.
:)
Merci Nico39
C'est excellent de voir le 1/3 de pied que j'avais emmener chez Wil ,qui est du coup parti chez cereus45 et qui finit finalement chez toi :-)J'adore le concept !
Super boulot ! Merci Nico39 et bravo à ton équipe
Quel méli-mélo de pièces pour un assemblage remarquable de précision.
Bravo les gars
Whaou !!!
Très bonne initiative et à n'en pas douter l’ambiance devait être de la partie
Bravo pour ceux qui ont participé
Merci cereus45 d'avoir mis notre pied en valeur, cependant tu as fait une petite erreur sur mon pseudo (kadjed) mais ce n'est pas gravissime du moment que le pied est réussi !
oups pardon Jacky c'est réparé
cereus45 merci
Le résultat final promets qlq'chose de vraiment sympa .
La partie faite avec Etienne31 est terminée. Je voudrais l'envoyer mais je n'ai pas l'adresse de céreus45. Je lui ai envoyé un mp mais il ne doit pas être disponible. Est-ce que Quelqu'un pourrait me la donner par mp avec son numéro de téléphone ? Merci d'avance. Cordialement. Greg
j ai hâte de voir le résultat final !!
Moi aussi
Notre mouton commence à tenir debout mais sur 3 pattes seulement ...
Avez vous de nouvelles de voltig-eure et de NinjaRouge ?
Je propose que les derniers payent l'appéro lors de l'assemblage final.
Whaou !! Ca va avoir de l'allure !! Bravo à tous ceux qui ont su tenir leur délais !
Je me sens mal de jouer le mauvais élève ... aie
Compte tenu de l'énergie que tu dépenses au quotidien pour lairdubois et le bien-être de notre communauté difficile de t'en vouloir.
mais grouilles toi quand même
toppp le pied 4 il a de la tronche ! chapeau les gars !!!
Sa commence à prendre forme, impatient de voir le le résultat de se patchwork de boiseux.
Merci à cereus45 pour tout le mal qu'il se donne pour fédérer tout se monde.
En tout cas on sait qui ne paiera pas l'apéro !
Tu connais mon sens du détail j'avais trouvé le breuvage en adéquation avec le projet
cereus45 trop fort !
Sa c'est de l'organisation !
jusqu'au-boutiste!!!!
wep on ne se refait pas
Excellent
Petit UP (de désespoir) à tous les participants pour finaliser ce beau projet. Où en n'est l'équipe 3 et 4?
Pas de désespoir, on va s'y mettre et le finir !
Autrement on peut faire une sixième patte
kajmed Si on devait aller jusque là je te laisse le flambeau pour organiser la suite :lol
zeloko
Non 5 mètres pour ce projet
cereus45 miuhaha !
C’est bon, j’ai fini les cinq pieds !
Comment ça ce ne sont pas les bons !?
fais gaffe au surmenage à la base tu t'es engagé pour faire 1/10 eme d'assise.
Mais en fait tes tables sont inspirées des automobiles il y a une patte de secour.
plus de nouvelles de NinjaRouge depuis 4 mois , inquiétant non ? lui qui était si actif sur le site ??
Salut sylvainlefrancomtois et salut à tous !
Merci beaucoup pour ta pensée, rassure-toi : je ne suis pas mort
Sans rentrer dans des détail aussi sordides que personnels : un Divorce, un licenciement et une dépression m'ont un peu fais lâcher le site un long moment.
Cela dit, toute médaille ayant un revers : une rencontre formidable qui embellit ma vie et un nouveau boulot tres prenant ont fait que je n'ai pas repris le temps de me reconnecter.
On ajoute a ça la vie trépidante et bien remplie de Papa célibataire une semaine sur deux et ça laisse pas beaucoup de temps libre !
Je vais relancer la combinée dans les 15 jours qui viennent car j'ai des congés et je vais faire ma partie du boulot !!
Malgré mon silence, vos messages et le site e général était un peu ma bouffée d'oxygène alors merci
cereus45 C'est surtout toi et l'équipe rhones-alpine que j'ai laissé tombé vous avez donc ma profonde gratitude pour votre patience et mes excuses !!
Je reprends du poil de la bête et j'ai confiance que ce beau projet verra le jour : il le mérite !!
A tout bientot.
Et désolé de l'épanchement
A+ Marco.
Bon courage Ninja et heureux de faire votre connaissance
Bricolo 36
NinjaRouge Content de te lire à nouveau !!!
Ce n'est pas tant pour moi mais plutôt pour tous ceux qui se sont engagés dans ce projet, qui ont fini leur(s) pièce(s) et qui "commencent" à s'impatienter. Je ne compte plus les messages...
Le fait que ce fil reprenne va tous nous rassurer et apporter l'énergie pour finaliser notre mouton.
Le dernier paye l'apéro
Bon retour parmi nous ;)
cereus45 C'est facile ça !!!
avec plaisir !
En tout cas content que tu sorte la tête de l'eau , au plaisir de te voir pour l'assemblage finale ou à la remise du "mouton" à Boris.
Content que le tabouret de cereus45 reprene vie et finisse par retomber sur ses pattes!
En plus une fois finis il devrait avoir un sacré look.
Allez un petit effort on est dans les dernières lignes droites.
hâte de voir ça fini ! courage ! on y est presque !
@ tous ceux qui se sont engagés: nous sommes au mois de novembre !
Pour que ce tabouret soit sous le sapin de Noel de Boris, les lutins que vous êtes doivent s'activer.
Les teams 2 et 3 nous n'attendons plus que vous ...
OK pour moi
Pour moi j'ai déjà fait plusieurs proposition de date à chaque fois sans écho.
D'ici la fin d'année je suis pour le moment dispo 25 novembre, le we du 8/9 décembre.
Je peux toujours envoyer ma pièce si besoin.
Au plaisir
Sylvain
Hey !! C'est moi qui suis à la mega Bourre !!
J'avance, le brut est presque prêt je fais la mise en forme et aux dimensions ce WE !! frêne et chêne fumé
Pour les WE, je regarde ça et je vous dis.
NinjaRouge hello ninja en retard , mais çà devrais être pas mal ! rien que le collage c'est très esthétique ;)
Heureux de constater que vous êtes en veille active
!
P'tain ... moi je suis loin de la veille active sur ma pièce. Faut que je me bouge le ... aussi !
Boris Beaulant et en plus plus tu as un petit tas de belles chute bien calibré a changer en map monde aussi :D
PLab grave ... honte à moi !
On croit en vous les gars :D.
Ma pièce est chez Voltig-eure, depuis un petit moment plus de nouvelles.
Rien de grave j'espère. Quelqu'un a des nouvelles?
Ca avance !!
le "Bloc capable" est terminé ! enfin .......
Petits problèmes lors de collages des bandes du coup j'ai perdu beaucoup d'épaisseur pour retrouver quelque chose de plat et la marge que j'avais prévue était tres tres largement insuffisante ... j'avais gardé 3mm de chaque coté et finalement il m'aurait fallu pas loin du double !! Je pense que c'est du a un leger manque de d'équerrage de mes découpes, sur des morceaux si petits c'est pas évident .... bref !! ca prend forme.
j'aime bien l'effet mirroir et je vais m'arranger pour qu'on ne voit pas le joint lors du positionnement de la piece finale. et puis j'ai un peu de marge, je dois pouvoir en faire 3 !
Youpi ça avance, un petit effort ça vient bon...
Cool on n'a jamais était si prêt du but

Il va avoir de l'allure ce dixième d'assise.
Il peut vu le temps qu'on l'a attendu !!!
et il a moins d'allure que d'autres en photo !! mais il fera son job
joli ! Bon alors faut que je mette un peu de couleur dans le mien alors ... il va faire tache sinon !
Boris Beaulant Une solution pour te démarquer dans ce projet c'est de faire simple
Boris Beaulant L'idée de la double hélice en deux essences différentes bien contrastées ne te tente pas ?

Cela dit si tu reste simple ca me va à moi simple néophyte !!
Boris Beaulant En Valchromat ?
Didier ou en ciment :P ?
Ou en résine ... tu fais la première hélice, tu fais une moule silicone et après tu coule la résine !! fastoche !!
Cool, ont va bientôt l'assemblée se tabouret.
Impatients de voir le résultat.
Quand je vous disais qu'on allaient tous finir par manger la buche chez Boris
c'est bien parti pour .
Il reste quoi a faire au juste ?
Ma pièce à moi, je me mets vite au boulot. Elle sera aussi minimaliste que celle de Boris.
J'ai fait ma pièce en deux heures un soir après le boulot.
Au final sa ne prend pas trop de temps.
Tu as bien raison riquet18x4 . Je me libère ces 2 heures.
voltig-eure NinjaRouge quelquechose à livrer ?
Yeah !!!! J'en ai meme fais plusieurs que vous puissiez choisir :
Autres photos :
et la fin
Superbe, ça valait le coup d'attendre !
kajmed merci c'est gentil
malgré les nombreux petits défauts je suis assez content
j'espère que ça ne dépareillera pas trop 
NinjaRouge tu n'en a fait que 3 les frères Dalton étaient 4 je crois
Je plaisante bravo pour ta participation et ta créativité.
cereus45 Je l'ai fais !!! C'etait le petit qui est toujours en colère !! il est parti très, très, très vite quand j'ai betement voulu le faire passer sur la dégau ... J'ai encore mal au doigt !!
du coup je l'ai pas mis sur la photo parce qu'il a la tronche en biais après sa rencontre a grande vitesse avec le mur !! 
P'tain les gars, je suis désolé de pas trouver le temps nécessaire à la finalisation de ma pièce !
on peut peut-être lancer une sixième équipe !!!???

ok je
Qu'elle bonne idée, sauf que pour les angles ça vas pas le faire... encore que à l'équipe 6 de faire avec et de s'adapter (elle a 1ans quand même!!!)
PFFF même pas drôle !
Bon je vais, en ajouter sur le coté bancal. Je pensais envoyer ma pièce mais pas moyen de remettre la main dessus.
Vu que mon atelier est à 200km et que je l'ai probablement oublié là bas il va en effet surement être nécessaire de me trouver un remplaçant car il n'est pas prévu que j'y retourne avant 3 mois. Ou alors je pourrais en refaire une autre mais seulement lors du passage chez mon père pour des fêtes de fin d'année.
Ha ca c'est dommage ...
Bon alors que décide t'on ?
De mon côté je suis en congés à la fin de la semaine prochaine. Si cela vous convient je propose que tous ceux qui on une pièce à m'envoyer le fasse courant de semaine prochaine. Je centralise, compléte le cas échéant et assemble l'objet avec l'aide de ceux qui pourront se libérer.
Il faut admettre que j'ai été trop ambitieux en voulant fédèrer 25 boiseux et pas assez compétent pour faire converger leurs énergies sur 2 plans (fabrication et rencontres pour de vrai)
malgré le retard dans la fabrication on peut sans mal dire que ton idée était géniale et qu'elle a été un franc succès tant sur le plan des rencontres (d'après ce que j'ai vu) que du rendu final !! et un léger retard n'est pas un échec ...... c'est juste un léger retard
Je ne sais pas pour les autres, pour ma part je te suis extrêmement reconnaissant de ton idée, de l'énergie que tu y as mis et du résultat qui dépassera toutes nos attentes.
Merci à toi !
C'est le meilleur exemple de ce que peut être l'air du bois que j'ai vu !! suivi de près par les BBQ
NinjaRouge entièrement d'accord !!! Suis juste désolé qu'après 3 aller-retour ma partie ne se retrouve pas dans le bon chez moi. Hâte de voir le résultat final.
Pièces sous presse....
Vas y ça presse
kajmed

, t’as pas idée !!!
T'as mis de la colle rapide, pas de problème !
Bon, alors, j’ai fini par faire les 2 pièces qui constituent une partie du pied. J’ai fait ces 2 pièces car je ne sais plus laquelle je devais faire.
Pour la 20 mm d’epais, 4 essence de bois (chêne, châtaignier, malaise, et frêne). Pour la stabilité, une feuille de plaquage verte de 6/10eme au milieu.
Pour la pièce en 25mm, cinq essence, les 4 même que la première avec du merisier en plus.
Tu vois avec de la colle rapide ça va vite
!
Super
Je le fais passer à qui? Un envoie grouper?
Avec tes 2 pièces, les 3 de NinjaRouge et les 2 miennes,
Alors, on pourrait se réunir tous les 5 pour finaliser notre partie.
Du coup, l'envoi serait groupé
Où et quand ? Je suis partant malgré une fin d’année chargée.
Samedi, c'est bon pour moi.
Oû vous voulez
Chaud patate pour samedi. Euh, là faut voir de mon côté.

Rrrr ... les gars j'aimerai tellement pouvoir 1. faire ma pièce, 2. la réunir avec vous. Mais ça va être méga tendu pour moi d'ici noel.
Ben, c'est l'occasion de te détendre ;)
Ce qui me détendrai, c'est que les journées fassent 30h pour y mettre tout ce que j'ai à y mettre :P
Étant passé par là, je compatis. On se détend.
Bon courage Boris.
Je viens de recevoir un colis de la part de Didier ! Voici le puzzle à l'heure d'aujourd'hui. Je vous souhaite à tous de bonnes fêtes de fin d'année et on se retrouve en tout début d'année pour finir ce tabouret juste avant les 6 ans de L.D.B.
Il me reste un morceau de pied si la Team AURA se décide ;)
Mais que sont les planchettes ?
C'est la bonne question ;)
Joker :P
cereus45 , je t’expedie le colis...
Ha bien niconathy , les chose avancent !
Je viens de retomber sur ma pièce rangée vers le matériel de ski (improbable du coup je n'avais pas cherché de ce coté là).
Je peux donc te la faire parvenir, il manque le coup de rabotage final pour la mise aux dimensions.
Cool :
Je suis preneur de tous vos morceaux de Bois...
Il te manque quoi comme pièce ?
Boris Beaulant À l'heure où j'écris il me manque le pied de l'équipe 2 je sais que toutes les pieces ont étés fabriquées mais je n'ai plus de nouvelles de voltig-eure : que faire ???
Pour le pied 3 j'ai reçu la pièce de Didier. J'ai deux dixième d'assise en stock surplus team n°1.
cereus45 tu as essayé d'appeler voltig-eure ?
Boris Beaulant oui j'ai laissé plusieurs messages.
Bonjour cereus45 tu as toujours ma deuxième moitié d'assises, si tu en a besoin pour finir le tabouret hésite pas.
Impatients de le voir terminé.
Oui j'ai toujours ta pièce. Je sais que certains ont fait leur pièce il faut juste réussir à les centraliser. Plus facile à écrire qu'à faire...
Je devais l’envoyer, puis un contre temps. Paquet in the car. Départ demain, promis juré c....é !????
moi je veux bien en refaire une piece si il te manque un truc ! hesite pas !
Merci je te tiens au courant
cereus45, que nous manque-t-il pour finir ce beau projet ?
Il nous manque le pied de voltig-eure je ne peux pas prendre la décision d'en faire un autre sans l'accord de ceux qui ont fait leur pièce dans cette équipe. Pour le pied Rhône-Alpes j'attends les pieces de NinjaRouge ton dixième d'assise me ferait plaisir mais il n'est pas indispensable si tu me donne ton accord pour le remplacer. J'ai bien conscience de l'énergie que tu dépenses pour nous ailleurs dans des projets bien plus ambitieux. De mon côté un déménagement se prépare pour le 15/03 donc peu de temps pour finaliser l'objet mais l'assemblage ne nécessite qu'une domino et un peu de colle...donc compte tenu de l'énergie dépensée aux multiples relances je trouverai le temps.
Bonjour, si jamais il y a besoin de faire une pièce supplémentaire je peux donner un coup de main. Je suis ce projet depuis le début et le trouve vraiment super chouette donc ça serait avec plaisir.
voltig-eure pas connecté depuis trois mois , inquiétant non ??
J'ai entendu dire qu'il allait bien.
Boris Beaulant tant mieux !! ;)
Boris Beaulant , tu peux peut être faire passer un message.
niconathy comment ça ?
Si tu as ouïe dire qu’il va bien, peut être tu peux faire passer un message dans l’autre sens.
niconathy arf, c'est cereus45, qui a eu des nouvelles par son frère, je crois.
Les dernières nouvelles rassurantes me viennent de stef88 mais elles remontent à la fin de l'année dernière.
Qui a des nouvelles ? Ça fait très longtemps
Bonjour kajmed.
Ce serait sympa qu'on le finisse ce tabouret.
riquet18x4 effectivement ce serait sympa, mais ma question est plutôt : qui a des nouvelles de voltig-eure ça fait 8 mois qu'il n'est plus connecté ?
oui c'est inquiétant pas moyen de le contacter d'aucune façon
et ma pièce est chez lui
bonjour a tous, j'ai passé quelques jours avec lui au 15 aout , pas de soucis il travaille toujours le bois, il me semble que une petite histoire soit survenue mais je n'ai pas de détail,pour le contacter le mieux c'est de tel, voila ce que je peux vous dire @+ stef
stef88 je suis content que tout aille bien pour lui
stef88 content qu'il aille bien également. Reste l'énigme de son silence radio...
J'ai retrouvé sa carte de visite. Bien occupé aujourd'hui, je l'appellerai demain dans la journée
Oula ce post reprend vie top si on peux finaliser le projet. A suivre
Salut la compagnie
J’ai laissé un message vocale à voltig-eure . En attente pour le moment...
On attend...
Si tu l'as au téléphone n'oublie pas de lui rappeler que j'attends le pied du tabouret qu'il a dans son atelier.
Et ça serait bien si le tabouret était fini pour le 22 novembre ... (il pourrait être exposé à Paris ... (Spoiler :P) )
Boris Beaulant le 22/11 de quelle année ?
Haha, 2019 :P
Boris Beaulant puisse ta proposition réactiviter toutes les bonnes énergies du départ et faire converger les pièces manquantes vers mon atelier...
Sinon de mon côté je m'engage à finir le tabouret pour cette date au risque de frustrer ceux qui ont fabriquer une pièce qui c'est égarée. Cette fois il faut prendre une décision la plaisanterie a un peu trop duré à mon goût
cereus45 s'il faut refaire les pièces bloquées et vu que j'en avais envoyé 2 a Max, pas de problème pour en refaire !
cereus45 pareil si tu as besoin de morceaux hésite pas !
cereus45 Faut le finir. Je vote pour ! Même si je fais partie de ceux qui n'ont pas fait leur devoir ... Et je pense que ce projet doit être le votre et qu'il mérite d'être mis en avant. Alors même si les pièces manquantes ne sont pas toutes faites par une personne différentes, il n'y a rien de choquant à ça. A mes yeux.
Et au 22/11, y aura les moyen de le mettre en avant (je vous en dis plus dans quelques semaines) ... surtout si c'est toi qui l'apporte :)
OK ON VA LE FINIR CE MOUTON A 5 PATTES !
On va faire une petite entorse à l'idée de base mais il faut l'achever.
Je vais me montrer un peu directif mais comme vous l'avez compris les multiples relances ont finies par me fatiguer.
J'ai à ma disposition 3 pieds assemblés et des pièces pour en faire un 4ème.
En résumé il manque un pied (5 pièces).
Certains se sont proposés pour en refaire je les remercie. Je donne la priorité à ceux dont la ou (les) pièce(s) qu'ils on fait se sont égarées. Blanche souhaite nous rejoindre également.
Cette fois j'impose une date les pièces doivent me parvenir pour le 27 septembre dernier délai.
Si possible les 3 "tiers de pieds" seront envoyés d'abord Didier qui y ajoutera sa touche personnelle et me les renverra. Les 2 dixièmes d'assise me seront envoyés directement.
Quoi qu'il arrive j'assemblerai le tout pour le 15 octobre.
C'est quoi que tu appelles les deux dixième d'assise ?
J'aurai besoin des 3 morceaux du pied collés pour graver par copiage à plat.
A oups ! Je rectifie
Je ne sais pas si tu l'as fait exprès, mais ta réponse est bien trouvée.
Zut, je viens seulement de voir le message. Vous avez tout ce qu'il faut ? Je pars pour une semaine apres demain donc pour moi le dernier créneau serait demain. C'est jouable. Si oui je fais quelle partie du coup ?
Ou j'arrive apres la bataille ?
cereus45 tu as ma partie je crois. Tu confirmes?
oui Nico c'est bon t'as fais ton job !
Content qu'on le finisse ce tabouret.
Tu dois avoir un double de l'assise que j'avais fait.
riquet18x4 oui je l'ai compté dans les pièces pour le 4ème pied.
Si tu as veux un coup de main le 15 octobre pour l'assemblage, je peux venir avec une bouteille de Sancerre et des crottins.
riquet18x4 même sans Sancerre ni crottins tu es le bien venu. On en reparle une fois que j'aurais réuni tous les morceaux.
cereus45 du coup tu dis si il te faut d'autre pièces..
J'ai bossé pour nous !
tien ce 5eme de pied me dis quelque chose ...

PLab c'est vrai qu'il a un air de famille avec le numéro 1 surtout au niveau de l'assise (et donc de ton interprétation de mon plan) lol.
cereus45 ah oui .... j'y ai penser figure toi

Didier Je t'envoie le pied dès que possible
Super!
Tu penseras à me donner ta nouvelle adresse également
Colis expédié !
Colis réceptionné
Didier GOOD ! Bons copeaux
C'est bon de voir le projet repartir
Grave ! hate de le voir fini quand même
Je suis bien d'accord avec toi.
Retour du pied n°3
Merci Didier pour ce clin d'œil qui a peut être échappé à certains.

Le "R" de Boris est devenu L' "R" (L'air) de L'airdubois lors du baptême de la plateforme.
Et le V pour le 5e anniv.
Sur la planchette offerte à Boris cet été un coup de fraise malheureux est venu remplacer le V en L'
Il manque le pied n°2
Y a t'il du nouveau du côté de Max ? Le pied était complet !!!
Je peux refaire ma partie mais je n'aurai pas le temps de la refaire comme au début. Elle sera beaucoup plus basique, c'est dommage.
Et celle de stef88 était vraiment super !
Max ne repond pas et ne rappelle pas...
Vraiment dommage ! du coup s'il faut refaire les pièces à qui c'est t'y qu'il faut les envoyer ???
A toi directement cereus45 ?
dependancesbois vraiment dommage oui! L'idéal serait de récupérer ce pied n°2, le moins pire de refaire des pieces de remplacement et le pire du pire ne pas finir ce projet.
Mon objectif étant de le finir en frustrant le moins possible les engagés du départ. Si je n'ai pas de nouvelles ce weekend, lundi les frustrés du pieds n°2 pourront se remettre au boulot et m'envoyer leur piece(s) directement.
cereus45 ok attendont lundi !
Je me souviens plus où, mais je me souviens avour lu que quelqu'un l'a vu récemment, voltig-eure
Peut etre repasser le voir pour récupérer le pied
Bon je crois qu'il est temps de s'orienter vers la fabrication d'un pied n°2 bis...
Désolé pour ceux dont la piéce est bloquée dans un atelier Normand mais pour nous tous il faut avancer et finir ce projet.
Qui est pret à refaire une piéce et à me l'envoyer ?
Je vais essayer de refaire mon tiers de pied, au plus tôt !
J'essaie pour la fin du mois entre le salon d'Épinal et plusieurs fin de chantier !!!
Je peux te faire un tiers de pied, pas plus car pour le moment je n'ai plus d'atelier fonctionnel, vue que j ai vendue mon ancienne maison.
Oh ! Tu n’as plus ton mégaphone gros atelier !?
Pour l’instant un peu coincé. Si je peux délégué, sachant que j’ai déjà une pièce dans le tabouret, je laisse ma place à ceux qui veulent participer.
Pour les photos, elles doivent être dans l’ordinateur de ma fille. Je les aurai donc ce week-end...
riquet18x4 Tu as déjà 2 pièces dans le projet c'est bien laisse bosser un peu les autres...
Je suis bien d'accord avec toi.
Mais il faut le finir se tabouret, juste que s'il te manque une pièce tu peux compter sur moi.
Boris Beaulant si je ne l'ai pas encore vendu, il me sert d'entrepôts en attendant d'avoir remonté le nouveau et l'électricité venait de la maison.
J'ai fais un pas à pas sur la construction du nouveau.
Que d'aventure pour ce tabouret!!! Que manque t'il exatement un pied complaît? je veux bien en refaire un morceau si besoin.
Nico39 > Que d'aventure pour ce tabouret!!! wep !
Je prends une pièce supplémentaire
bon meme combat pour moi j'ai deux piece dedans ....
mais bon si besoin :D
Blanche souhaite nous rejoindre dans ce projet, je lui propose de faire un tiers de pied.
Excellent!
Parfait, c'est cool.
yes ! le bout du tunnel !!!
Voilà ! Un tiers de pied de droite. Merci aux profs du lycée qui m'ont laissée prendre un filet trop beau. Je vais de ce pas à la poste, j'espère qu'elle est encore ouverte.
Fermée ! Je l'envoie dans la semaine.
Blanche

Blanche Wahooo !
Top merci
Merci :)
Blanche C'est le pied ce filet!
kaj


kaj Héhé
Super très joli
Le grand luxe ce pied
Si j’ose, c’est pas un pied Louis XV, mais c’est un joli pied féminin
Ok je
Bonjour Blanche,
Ce pied est magnifique(même si les autres aussi). Je ne connait pas cette technique tres esthétique.
Je suppose que le filet est la bande de motif. Est que cela se pose en incrustation comme de la marqueterie? Si oui, quelle épaisseur fait ce filet?
Sais tu comment s'en procurer?
Désolé pour les questions de candide.
Bonjour labulle
Merci ! Ce filet fait autour d'1mm d'épaisseur. Oui j'ai fait une rainure à la toupie pour l'incruster (mais ça pourrait se faire à la défonceuse ou bien au trusquin et à la guimbarde, ou simplement au ciseau sur une plus petite longueur, ou avec d'autres méthodes que je ne connais pas).
mais c'est le même principe : tu fais un motif mais plus "haut" que ce qu'il te faut et après tu en scies une bande (ou tu rabotes comme fait le gars de la vidéo mais faut avoir le coup de main). Il faut bien que le fil de ton bois soit dans le même plan que la bande que tu découperas parce que s'il est en bois de bout, il sera beaucoup plus fragile.
!
Comme je suis au lycée j'ai la chance d'avoir plein de matos à disposition donc je n'achète pas grand chose. Tu peux t'en fabriquer toi-même en collant ensemble des feuilles de placage ou des fines bandes de massif et en les recoupant ensuite un peu comme fait le gars là : youtube.com/wa...h?v=TxvOMHoLRBY Bon, lui il fait pas des filets
youtu.be/fKy6Ekmgcv4 cette vidéo montre plus spécifiquement comment peuvent être faits les filets. Y en a peut-être d'autres, ou des cours écrits mais je ne sais pas où
Pour en acheter, en cherchant "filet marqueterie" tu peux trouver pas mal de site :
kauffer.eu/acc...de-marqueterie/
gauthey.fr/fil...mpose-9-10.html
marechaux.fr/1...ueterie-compose
ftfi.fr/bois/a...s-et-motifs.htm
En espérant t'avoir aidé, heureuse de t'avoir fait découvrir un nouveau jouet
Amuse-toi bien !
Les filets servent aussi en lutherie, acoustique notamment. On a les mêmes fournisseurs.
Eventuellement on pourrait rajouter Filbo (des Italiens qui viennent au Festival Guitare Issoudun).
Beaucoup de luthiers achètent leurs filets mais certains les font.
Un exemple un peu chargé.
Merci Blanche et trente six seb
Cela fait envie...je vais certainement tenter ça dans les mois qui viennent
dependancesbois Peux tu me confirmer l'envoi de ta pièce de substitution ?
Et me confirmer qu'il s'agit bien d'un tiers de pied. Je voudrais fabriquer ce qui me manque ce weekend.
Oui je le poste a l'instant et c'est bien un tiers de pied (section 25*26)
Super
il me reste un tiers pieds de 26x20 et c'est ok. J'ai hâte de voir tout ça assemblé... il faut dire que le suspense a pas mal duré...
La poste est bien capable de nous le perdre en route je vais attendre les photos...
Nico39


Ho nonnnnn !!!! Déjà que j'en avais fait 2 qui sont chez Max alors pas le troisième !
Super on est sur la dernière ligne droite.
Boris va enfin pouvoir s'asseoir ..

Victoirrreeeeeee!!!
Ce soir mise à longueur des pattes de notre mouton. On avance ...
Ça sent bon la !!!!!
Supeeeeerrrrrr
C'est vraiment sympa qu'il se finisse.
Excellent!!!





yeahhhh !!! le bout du tunnel ( un lonnngggggg tunnel
)
Comme disait mon dernier patron : Ça va, on est dans les temps ? ... Non, mais on va y arriver !!!
La persévérance finit par payer

Ça fait plaisir de voir qu'il arrive au bout
Top ! Ça y est !!!!! Hates de le voir en vrai a Paris ! Bravo pour la finalisation du projet cereus45 !
Merci cereus45 d'avoir mené jusqu'au bout ce projet !
Il est vraiment chouette ce tabouret, mais c'est encore plus chouette de savoir que c'est le travail d'une équipe !
Bravo à tous :)
Et voilà, c'est fini, MERCI Cédric !!!!
cereus45 le pas à pas est pas en finiiiiiii
ahh quoi que il sera fini quand le mouton sera remis à notre grand gourou Boris Beaulant
Ça c'est du UP!! Bonne chance!!
Youpi l'épilogue. Il a de la gueule en plus je trouve top.
Wep en plus ca colle avec mon "style"
Ton morceaux de noyer est top
Bonjour toutes et tous
Bravo pour votre implication et l'aboutissement de ce magnifique projet.
Bon courage pour la suite
Du coup, il ne faut pas faire un 6ème pied ??
Très belle réalisation et très bel esprit.
Bravo à tous pour la réalisation de ce tabouret, il est vraiment très beau.
Merci à cereus45 pour avoir eu cette superbe idée du tabouret, qui nous à fait sortir de derrière nos écrans pour se rencontrer.
Magnifique travail de l'équipe !!!
Bravo Cédric pour ta persévérance.
Partage d'une bande de "jeunes"
A lui tout seul, super !
Bon anniversaire et longue vie
à l'R du Bois
Quant à moi je fais plutôt partie des potes âgés
kaj tu sais bien que pour le technicien serriste que je suis un potager n'est pas un souci
Felicitation,maintenant il faudrait préparé pour le sixième anniversaire
Je vise plutôt les 10 ans pour tenir les délais
Chiche?
@ça va venir vite. On est bientôt à 7 :P
Ou bien ce Modèle ça laisse un peu de temps
7, c'est l'âge de raison. Ça se fête aussi, non ?
Je clique sur le bouton terminé
de ce pas à pas 
En plus de la vidéo, peut-être searit-il bien de mettre les photos du tabouret fini ?
(M'enfin, peut-être veux-tu en faire une création ...)
Bon, après, je te l'accorde. Un autre projet n'a jamais été achevé avec tout ça c'est l'intégration des collectifs pour justement publier une création à plusieurs ...)
super Cédric très chouette le résultat bravo a tous


dommage , ninjarouge avait fait de jolies pièces !! mais bon la vie parfois n'est pas un long fleuve tranquille !
J'en ai bien conscience
Je comprends la frustration de ceux qui se sont impliqués sans voir leur(s) pièce(s) arriver jusqu'à l'assemblage final. A un moment donné j'ai du faire des choix pour faire aboutir ce projet et satisfaire le plus grand nombre des participants.
Si un jour les pièces en errance me parviennent je m'engage à en faire quelque chose...
cereus45
Boris Beaulant , un de ces 4, je passe voir ce chef-d’œuvre orchestré par le chef cereus45


niconathy avec plaisir Nico !
niconathy les chefs n'existent pas sur LADB La démo a même été faite à PARIS. Même à New-York ce sera pareil...
Tu nous feras une photo !
cereus45 tu as été le chef d'orchestre





Merci cereus45 , beau projet rondement bien mené !












Je vais tout faire pour venir le voir en fibres et en cellulose à Paris
YOUPIIII !!!
Hé les boiseux collaboratifs si on leur collait une affiche au Maker Faire
Yeah !
C'est mon côté militant
Les choses avancent grâce à ceux qui persévèrent !
la classe cereus45 mais faut nous la montrer sans la protection cette affiche lol
PLab il faut venir sur le stand de LADB pour ça !
cereus45 Alors une photo sur place sans le plastique pour ceux qui ne viennent pas, on veux savoir tout le mal que tu dis sur nous
Ca m'aurait fait plaisir de venir vous voir et de lire ronde affiche cereus45 .
Bon Maker Faire.
Argggg ! Vais pas pouvoir venir finalement !!!


Vivement une 'tite photo de la bas!
Bon salon !
dependancesbois Dommage
j’essais de vous faire une petite photo entre 2 coups de scie
niconathy j'emmène ta pièce bis pour le Big Brother ?
On peut être fier de notre petit tabouret beaucoup de visiteurs s’arrêtent pour l’admirer
Du coup ils repartent avec plein d’informations Sur LADB
Cool bravo à toi cereus45
Alors pour les participants au projet voici un petit retour du tabouret finit . Et comme vous pouvez le voir , mission accompli, le projet est arrivé a destination dans les bras de BORIS comme convenu.
Un GRAND BRAVO A TOUS et encore MERCI à Cédric pour son initiative et son dévouement tous au long de ce projet.
captain Merci pour ces photos
Et milles merci à tous notre création est tout un symbole !
Pourvu que Boris Beaulant ne reste pas assis dessus trop longtemps et que le belle aventure de LADB continue.
captain merci pour les photos, cereus45 merci d'avoir tenu jusqu'au terme de la réalisation.
Ça y est, c'est fait

Bravo cereus45 pour ton engagement et ta persévérance
Merci un tous c’est un cadeau inestimable !
Un beau symbole ! Merci cereus45 et Boris Beaulant !!!
Merci pour les belles photos et un grand bravo à tous les participants
Bravo à tous. ça fait plaisir de voir vivre l'air du bois à travers les différentes actions.

chênedinspiration
Boris Beaulant Ce projet reste tout petit par rapport à ce que tu as mis en place pour nous mais il est complétement dans l'esprit que je me fais (avec les 18 autres créateurs) de L'air du Bois. C'est cela qui est inestimable !
en plus on peux s'assoir dessus !
Elle est un peut étrange cette photo. C’est pas notre meilleure :)
Boris Beaulant je la retire ?
Comme tu veux :)
merci à tous
Blanche ton filet a beaucoup interpelé les visiteurs !
Je vous like tous !
Il y a un peu plus de 2 ans lorsque Boris a lancé son Idée pour les 5 ans il rêvait déjà de l'outil collectif qu'il vient de mettre en place. Quand on y regarde de près c'est cette notion (collectif) qui a portée notre projet.
. Il me semble opportun de changer de publicateur.
Boris Beaulant pour ce nouvel outil !
Nous étions des pionniers
J'invite les participants à rejoindre le collectif projettabouret5ans. Merci à tous et
Que de souvenirs !
Bon, maintenant on compte sur Boris pour un Retour d'expérience sur ce tabouret.
Une autre fonctionnalité qui n'existait pas et qui a enrichi le site
cereus45 pour être collectif ce projet à été collectif avec beaucoup de rebondissements, merci d'avoir été tenace et endurant sur ce marathon!
Vivement que les salons reprennent et sans "barrières" qu'on puisse le voir en vrai !!!!!